Appartement - 1 pièce(s) - 33 m² Lyon 8
Description
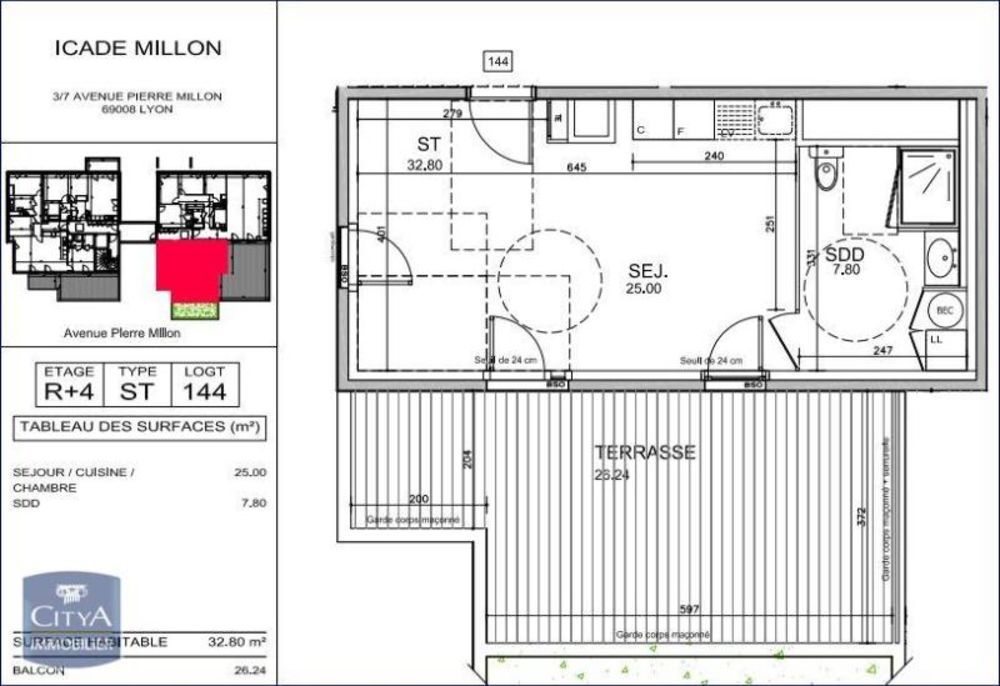
A LOUER // APPARTEMENT T1 // 3 AVENUE PIERRE MILLON 69008 LYON Citya Vendome Lumière vous propose à la location à deux de 3 minutes à pied du métro ligne D, arrêt Mermoz Pinel, dans une belle résidence neuve, en première occupation, un T1 de presque 33,40 m2 avec une magnifique terrasse plein ciel de plus de 26 m2. Il est composé d'une pièce principale avec cuisine ouverte donnant sur la terrasse et d'une salle de douche. Côté transports, il y a 12 lignes de bus, la ligne de métro D (Mermoz-Pinel) ainsi que la ligne de tramway T6 (Mermoz-Pinel) à proximité. L'autoroute A43 est accessible à 1 km. On trouve de nombreux restaurants, deux bureaux de poste et un restaurant universitaire à quelques minutes. Prenez contact avec votre agence Citya Vendôme Lumière pour une visite de cet appartement à louer. Loyer de 768,00 euros par mois charges comprises dont 38,00 euros par mois de provision pour charges (soumis à la régularisation annuelle). Soit avec Assurance Habitation et Assistance* ( 18.00 euros ) : 786,00 euros. Les honoraires charge locataire sont de 508,77 euros ( soit 15,23 euros/m² ) dont 100,20 euros pour état des lieux ( soit 3,00 euros/m² ). Vous pouvez consulter les barèmes d'honoraires à l'adresse suivante : #bareme-location Montant estimé des dépenses annuelles d'énergie pour un usage standard : entre 587 et 794 euros. Prix moyens des énergies indexés en 2021. Zone soumise à encadrement des loyers. Le loyer de base du bien proposé est de 730 euros, le loyer de référence majoré (fixé par arrêté préfectoral) est de 624,58 euros et le complément de loyer est de 107 euros par mois.Les informations sur les risques auxquels ce bien est exposé sont disponibles sur le site Géorisques : https://www.georisques.gouv.fr. *Service facultatif. Contribution annuelle "attentats" non comprise. Voir conditions en agence.
Informations clés
- Prix 768 € CC*
- Référence ParuVendu GES98670082-184
- Nombre de pièces 1 pièce
- Surface 33 m²
- Date DPE 06/04/2023
- Classe énergie C
- Indice d’émissions de gaz à effet de serre A
- Dépenses énergétiques Montant moyen pour 2021 : 691 €
Diagnostic énergétique


Pour la nouvelle notation (DPE à partir de juillet 2021), c'est la plus mauvaise des deux performances (énergie, climat) qui est retenue.