T2 bis Hyper centre Toulouse

PreviousNext

Description

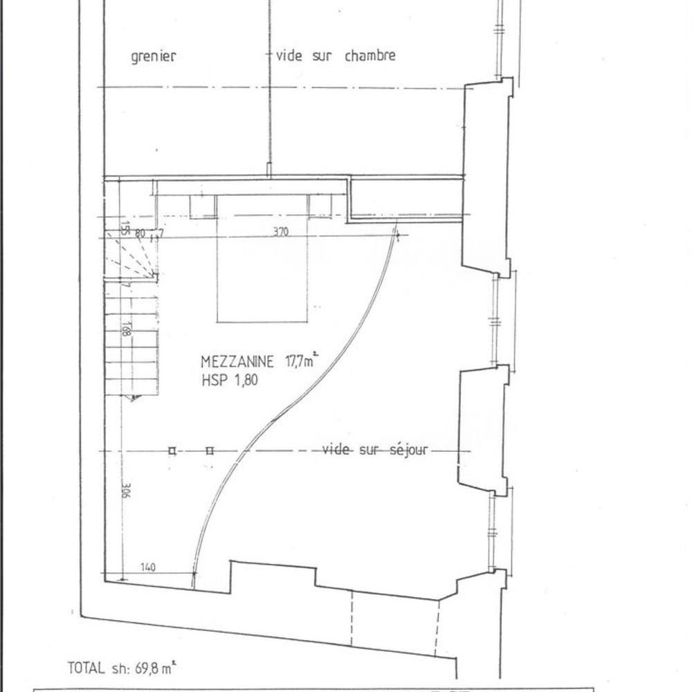
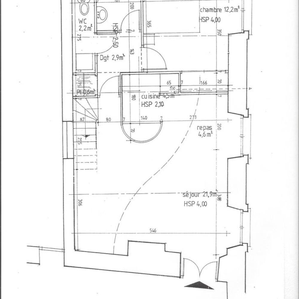
HYPER CENTRE Particulier loue à deux pas du Capitole très grand T2 bis (52 m2 loi carrez mais 70 m2 habitables). Très calme situé au 1ier étage d'un immeuble de caractère sa vue donne sur le pavillon Mazar, classé monument historique. Il se compose de: Gand séjour (30 m2) comprenant une cuisine ouverte, équipée d'une plaque de cuisson et d'un four Une chambre séparée de 12 m2 En mezzanine une autre chambre ou bureau 18 m2 + un très grand dressing, un WC séparé et une salle de bain. Equipé de la fibre. Le chauffage électrique et l'eau chaude sont individuels. Possibilité de garer un ou plusieurs vélos dans le local sécurisé de la copropriété. Le loyer de l'appartement hors charge est de 900 €. Les charges sont de 70 € elles comprennent l'entretien des parties communes, minuterie, l'eau froide, plus la taxe sur les ordures ménagères. Le loyer mensuel charges comprises est donc de 970 € Libre fin octobre.

Informations clés

  • Prix 970 € CC*
  • Référence WI176225671
  • Nombre de pièces 2/3 pièces
  • Surface 52 m²
  • Date DPE 01/01/1970
  • Classe énergie  D
  • Indice d’émissions de gaz à effet de serre  B
  • Ce bien fait l'objet d'un état des risques. Les informations sur les risques auxquels ce bien est exposé sont disponibles sur le site Géorisques : https://www.georisques.gouv.fr
  • Date ERP 03/08/2023

Diagnostic énergétique

https://img.paruvendu.fr/_static_/2025100909/immobilier/img/pictos/classeenergie_2022.pnghttps://img.paruvendu.fr/_static_/2025100909/immobilier/img/pictos/ges_2022.png

Pour la nouvelle notation (DPE à partir de juillet 2021), c'est la plus mauvaise des deux performances (énergie, climat) qui est retenue.