Nice Carré d'Or - Local commercial Nice
Slide 1 of 3 
Slide 2 of 3 
Slide 3 of 3 
Description
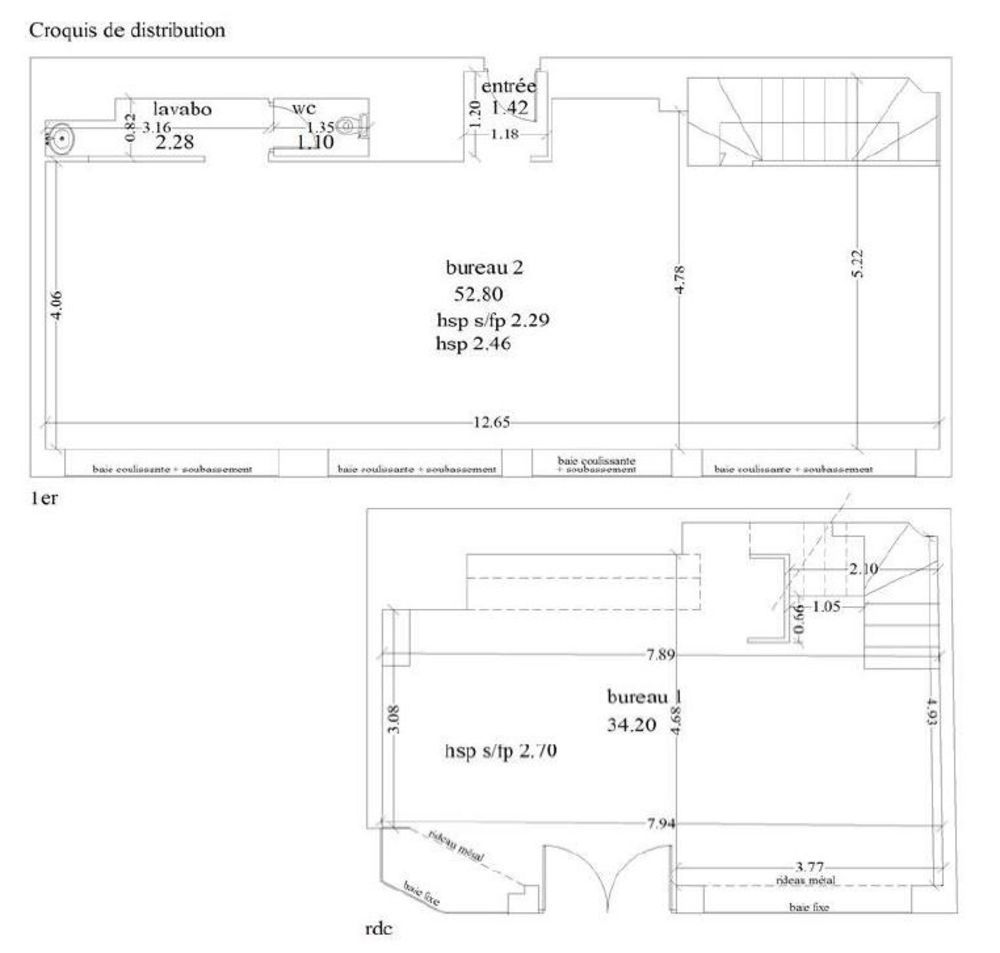
Début de la rue de la Buffa, à deux pas de la place Grimaldi local commercial de 93m2 sur deux niveaux, grande vitrine, emplacement de premier choix. Disponible rapidement Détails : Nombre de niveaux : 2 Honoraires à charge de l'Acquéreur Honoraires : 14040 euros Nom du négociateur : MOUTIER Arnaud Taxe foncière : 0 euros
Informations clés
- Prix 3 900 €
- Référence ParuVendu 5-388
- Surface 93 m²
- Date DPE 01/01/1970
- Classe énergie NC
- Indice d’émissions de gaz à effet de serre NC
- Ce bien fait l'objet d'un état des risques. Les informations sur les risques auxquels ce bien est exposé sont disponibles sur le site Géorisques : https://www.georisques.gouv.fr
- Date ERP 11/03/2025