Vente Appartement 4 pièces Aubagne
Description
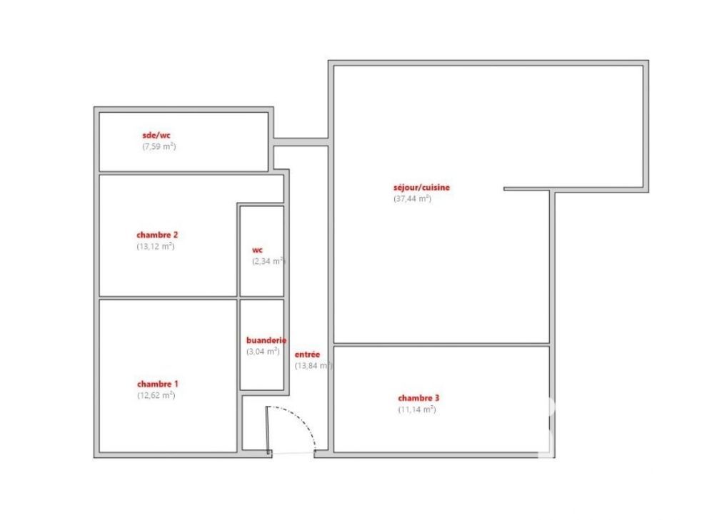
iad France - Laure Hauquier vous propose: Nouveauté à Aubagne – Quartier calme et recherché Découvrez ce bas de maison de 114 m², niché sur une parcelle de 250 m², offrant un cadre de vie agréable et apaisant. Ce T4 fonctionnel et lumineux se compose de : • 3 belles chambres, • un espace salon / séjour / cuisine spacieux et baigné de lumière, • une buanderie, • ainsi qu’une salle d’eau moderne. À l’extérieur, vous profiterez d’une grande terrasse exposée plein sud, idéale pour savourer le calme environnant et les belles journées. Une piscine hors-sol et un local technique viennent compléter ce bien. Une opportunité rare à Aubagne, alliant confort, modernité et sérénité. Contactez-moi pour organiser une visite et découvrir ce lieu de vie plein de charme. La presente annonce immobiliere vise 1 lot situé dans une copropriété de 3 lots au total et ne faisant l'objet d'aucune procédure en cours citée à l'article L. 721-1 du code de la construction et de l'habitation. Montant moyen mensuel de charges déclaré par le vendeur : 24.17€ par mois (soit 290 € annuel). Honoraires d'agence à la charge du vendeur. Information d'affichage énergétique sur ce bien : classe ENERGIE C indice 163 et classe CLIMAT A indice 5. Les informations sur les risques auxquels ce bien est exposé, y compris l'obligation légale de débroussaillement, sont disponibles sur le site Géorisques : La présente annonce immobilière a été rédigée sous la responsabilité éditoriale de Mme Laure Hauquier mandataire indépendant en immobilier (sans détention de fonds), agent commercial de la SAS I@D France immatriculé au RSAC de Marseille sous le numéro 978130276, titulaire de la carte de démarchage immobilier pour le compte de la société I@D France SAS. CC HT Numéro de mandat : 1904994 Honoraires à la charge du Vendeur Bien En copropriété : OUI Nombre de lots de la copropriété : 3 Montant moyen des Charges annuelles : 290 euros Procédure sur le Syndicat des copropriétaires : NON
Informations clés
- Prix 440 000 €
- Référence ParuVendu 1904994
- Nombre de pièces 4 pièces
- Surface 114 m²
- Date DPE 20/11/2025
- Classe énergie C
- Indice d’émissions de gaz à effet de serre A
- Dépenses énergétiques Montant moyen pour 2023 : 1 530 €
Diagnostic énergétique


Pour la nouvelle notation (DPE à partir de juillet 2021), c'est la plus mauvaise des deux performances (énergie, climat) qui est retenue.