Appartement T1 à Boulogne-Billancourt Boulogne-Billancourt
Slide 1 of 3 
Slide 2 of 3 
Slide 3 of 3 
Description
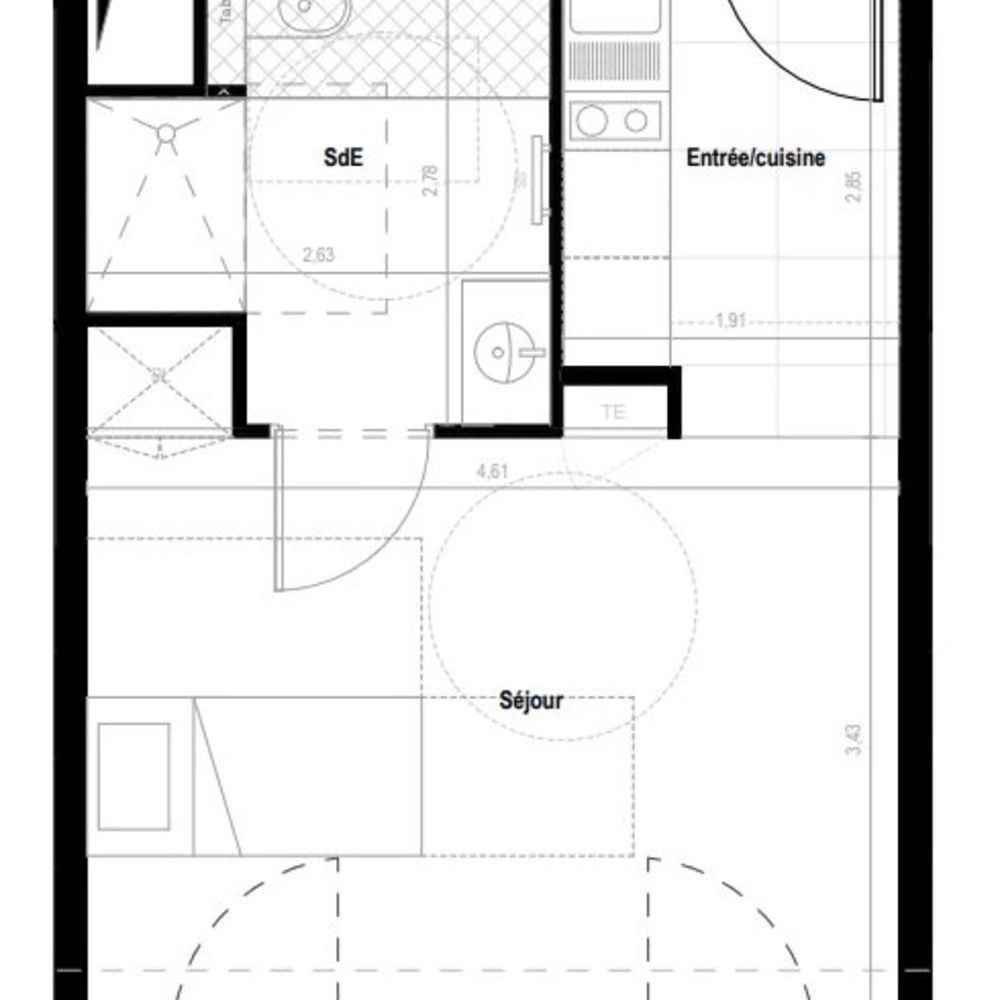
Dans une résidence moderne et idéalement située à 2 minutes à pied de la ligne 9 du métro, des commerces et des écoles. Cet appartement se compose : - d'une entrée/cuisine, - d'un séjour, - d'une salle de douche. Pour plus d'information, merci de nous contacter directement. Numéro de mandat : 92BOULCATB209 Précision localisation : Silly-Gallieni Honoraires à la charge de l'Acquéreur : NON Bien En copropriété : NON
Informations clés
- Prix 354 000 €
- Référence ParuVendu 92BOULCATB209
- Nombre de pièces 1 pièce
- Surface 27 m²
- Date DPE 24/02/2026
- Classe énergie B
- Indice d’émissions de gaz à effet de serre B
Diagnostic énergétique


Pour la nouvelle notation (DPE à partir de juillet 2021), c'est la plus mauvaise des deux performances (énergie, climat) qui est retenue.