T2 3è étage expo sud vue rade Brest
Description
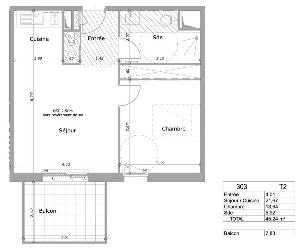
L'agence 'MON BIEN A LA MER', spécialiste de l'immobilier neuf sur les côtes Bretonnes, vous présente : Petite résidence de 13 lots en front de rade, livrée début 2026 et disponible de suite. Commerces bus et tram -500m. Plage Sainte Anne à 10 min en voiture. Frais de notaire réduits. Ascenseur. T2 3è étage avec belle vue mer. Séjour de 22m2+entrée 4m2 terrasse 8m2 Chambre 13,64m2 Salle d'eau douche à l'italienne meuble vasque sèche serviette. Parking sous sol inclus. Nous Consulter. Honoraires à la charge du vendeur. Classe énergie B, Classe climat B Montant estimé des dépenses annuelles d'énergie pour un usage standard : entre 380.00 € et 580.00 € sur les années 2021, 2022 et 2023 (abonnements compris). Les informations sur les risques auxquels ce bien est exposé sont disponibles sur le site Géorisques : georisques.gouv.fr. Votre conseiller MON BIEN A LA MER : Gérant - .fr MON BIEN A LA MER Carte T CPI 2225 040 RCP ACM IARD B1 7025278 TTC Plus d'information : - Aménagement pour handicapés Honoraires à la charge du Vendeur Bien En copropriété : NON
Informations clés
- Prix 229 000 €
- Référence ParuVendu VA6530-BIENALAMER
- Nombre de pièces 2 pièces
- Surface 45 m²
- Date DPE 05/10/2025
- Classe énergie B
- Indice d’émissions de gaz à effet de serre B
- Dépenses énergétiques Montant moyen pour 2021 : 480 €
- Ce bien fait l'objet d'un état des risques. Les informations sur les risques auxquels ce bien est exposé sont disponibles sur le site Géorisques : https://www.georisques.gouv.fr
Diagnostic énergétique


Pour la nouvelle notation (DPE à partir de juillet 2021), c'est la plus mauvaise des deux performances (énergie, climat) qui est retenue.