Appartement - 2 pièce(s) - 45 m² Charbonnières-les-Bains
Description
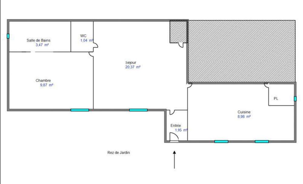
Idéal pour un premier achat, un pied à terre ou une résidence secondaire. Avec son exposition sud-ouest et son jardin de 80 m², cet appartement de 45 m2 est une opportunité dans ce secteur paisible de Charbonnières. Il comprend un petit hall, une cuisine avec un cellier, un séjour (19 m²), une chambre et une salle de bain indépendante. WC séparés. Côté pratique, la gare SNCF de Charbonnières permet de rejoindre en 15 minutes la station de métro Gorge de Loup et pour les sportifs, la voie lyonnaise cyclable n°8 se déploie jusqu'à la Porte des Alpes à Saint-Priest. Un appartement ensoleillé, évolutif qui nécessite quelques travaux de rénovation pour le rendre plus actuel. Les points forts : le calme, un accès indépendant, une copropriété qui a fait peau neuve Renseignement et visite sur demande Descriptif : - Surface habitable : 45 - Superficie terrain : 80 - Nbre. d'étages : 2 - Étage du bien : RDC - Nbre. de chambres : 1 - Nb. de pièces : 2 - Nb. de salles de bain : 1 - Nb. de WC séparés : 1 - WC séparés - Type parking : Extérieur Honoraires à la charge de : vendeur Bien En copropriété : Non
Informations clés
- Prix 215 000 €
- Référence ParuVendu 11TRA22
- Nombre de pièces 2 pièces
- Surface 45 m²
- Date DPE 11/07/2024
- Classe énergie E
- Indice d’émissions de gaz à effet de serre B
Diagnostic énergétique


Pour la nouvelle notation (DPE à partir de juillet 2021), c'est la plus mauvaise des deux performances (énergie, climat) qui est retenue.