Vente Appartement 3 pièces Guilherand-Granges
Description
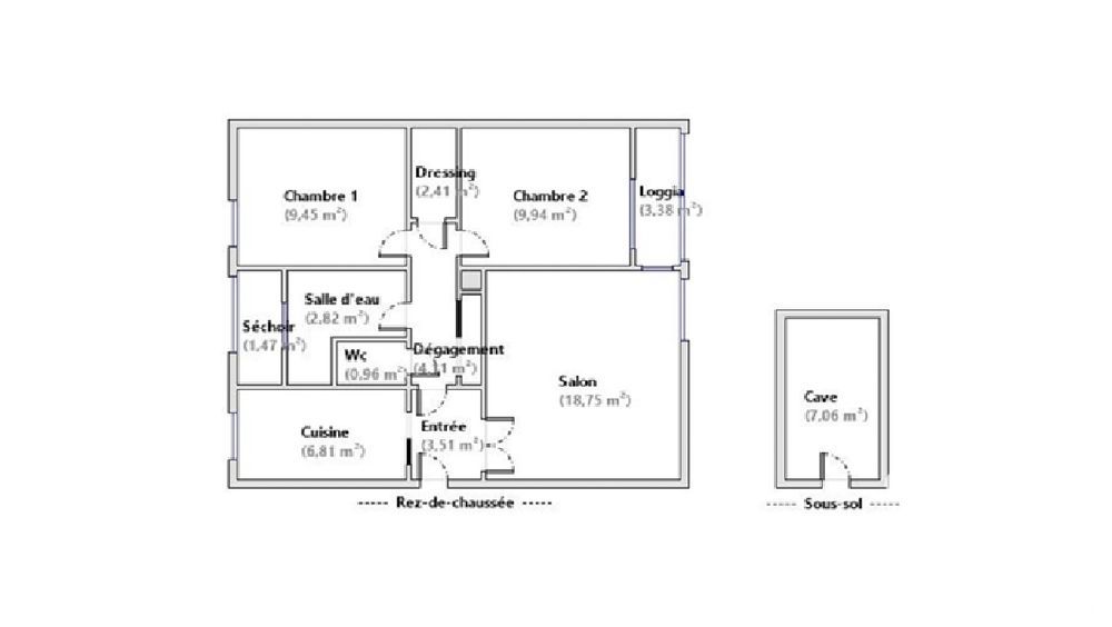
iad France - Tanguy MARLHENS vous propose: T3 À RÉNOVER – GUILHERAND-GRANGES – RDC surélevé avec un fort potentiel. Appartement T3 de 60 m² : salon lumineux, cuisine indépendante, 2 chambres, dressing, salle d’eau, WC séparé et balcon. Cave en sous-sol. Travaux à prévoir – idéal projet perso ou investissement. Proche commodités. À visiter rapidement ! La presente annonce immobiliere vise 2 lots situés dans une copropriété de 600 lots au total et ne faisant l'objet d'aucune procédure en cours citée à l'article L. 721-1 du code de la construction et de l'habitation. Montant moyen mensuel de charges déclaré par le vendeur : 123.33€ par mois (soit 1480 € annuel). Honoraires d'agence à la charge du vendeur. Information d'affichage énergétique sur ce bien : classe ENERGIE D indice 221 et classe CLIMAT D indice 31. Les informations sur les risques auxquels ce bien est exposé, y compris l'obligation légale de débroussaillement, sont disponibles sur le site Géorisques : La présente annonce immobilière a été rédigée sous la responsabilité éditoriale de M Tanguy MARLHENS mandataire indépendant en immobilier (sans détention de fonds), agent commercial de la SAS I@D France immatriculé au RSAC de ROMANS sous le numéro 812566891, titulaire de la carte de démarchage immobilier pour le compte de la société I@D France SAS. CC HT Numéro de mandat : 1886998 Honoraires à la charge du Vendeur Bien En copropriété : OUI Nombre de lots de la copropriété : 600 Montant moyen des Charges annuelles : 1480 euros Procédure sur le Syndicat des copropriétaires : NON
Informations clés
- Prix 110 000 €
- Référence ParuVendu 1886998
- Nombre de pièces 3 pièces
- Surface 61 m²
- Date DPE 16/12/2025
- Classe énergie D
- Indice d’émissions de gaz à effet de serre D
- Dépenses énergétiques Montant moyen pour 2023 : 1 345 €
Diagnostic énergétique


Pour la nouvelle notation (DPE à partir de juillet 2021), c'est la plus mauvaise des deux performances (énergie, climat) qui est retenue.