Bel appartement 4 pièces au calme avec grand balcon ! Guyancourt
Description
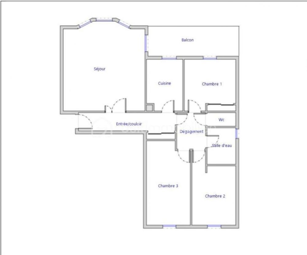
Appartement, Idéalement situé près du : - lycée hôtelier - l'université, UVSQ-faculté de droit et science politique. - Des jardins de l'Aqueduc - Accès rapide pour la A 86 direction Versailles ou la A 12 Paris - Quelques minutes à pied de la gare de Saint-Quentin-en-Yvelines et du Vélodrome national de St Quentin. Cet appartement de 84 m² au premier étage (sans ascenseur) comprend une entrée avec rangement, un séjour-salle à manger de 23 m2 environ, une cuisine séparée et aménagée, trois chambres, une salle d'eau, un WC séparé, un grand balcon et une place de parking boxée en sous-sol. Cette annonce référence 310402 vous est présentée par votre agent commercial BSK Immobilier NICOLAS VAN DE WALLE (EI) immatriculé au RSAC de VERSAILLES (78000) sous le numéro 91891645300015. Prix du bien : 299 000,00 € Les honoraires d'agence sont à la charge du vendeur. A propos de la copropriété : Pas de procédure en cours. Nombre de lots : 79 Charges prévisionnelles annuelles : 2 400,00 € A propos des performances énergétiques : Date de réalisation du diagnostic énergétique : 09/07/2025 Score DPE : 150 kWhEP/m²/an Score GES : 29 kgepCO2/m²/an Montant estimé des dépenses annuelles d'énergie pour un usage standard : entre 1160.00 € et 1610.00 € par an. Prix moyens des énergies indexés sur l'année 2021 (abonnements compris). Les informations sur les risques auxquels ce bien est exposé sont disponibles sur le site Géorisques : www.georisques.gouv.fr Nom du négociateur : NICOLAS VAN DE WALLE Honoraires à la charge du Vendeur Bien En copropriété : oui Nombre de lots de la copropriété : 79 Montant moyen des Charges annuelles : 2400 euros Statut du négociateur : agent commercial indépendant
Informations clés
- Prix 299 000 €
- Référence ParuVendu 310402
- Nombre de pièces 4 pièces
- Surface 80 m²
- Date DPE 09/07/2025
- Classe énergie C
- Indice d’émissions de gaz à effet de serre C
- Dépenses énergétiques Montant moyen : 1 385 €
Diagnostic énergétique


Pour la nouvelle notation (DPE à partir de juillet 2021), c'est la plus mauvaise des deux performances (énergie, climat) qui est retenue.