NEUF T1 VUE MER - LE BARCARES Le Barcarès
Description
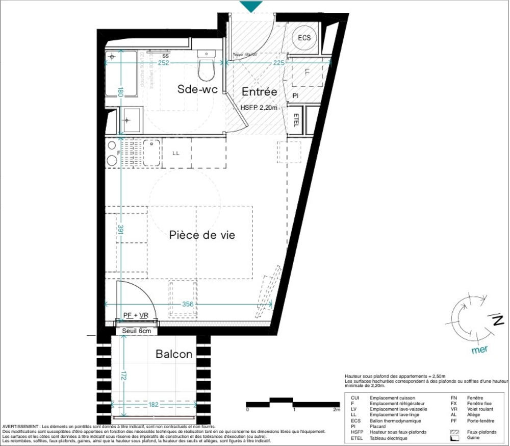
Dans un écrin de verdure à deux pas de la plage, ce programme neuf haut de gamme propose des appartements du T1 au T4 avec de belles terrasses, des prestations soignées et des matériaux de qualité, offrant un cadre de vie élégant entre nature et confort. La résidence sécurisée dispose d'une piscine, de parkings privatifs et d'un accès direct à la mer, tout en restant proche des commerces et commodités, idéale pour une résidence principale, secondaire ou un investissement. Les informations sur les risques auxquels ce bien est exposé sont disponibles sur le site Géorisques "www.georisques.gouv.fr" Copropriété de 81 lots - dont 55 lots habitation. (Pas de procédure en cours). Charges annuelles : 744 euros. Etat général : Excellent Année de construction : 2026 Chauffage : Individuel Chauffage (mécanisme) : Air pulsé Chauffage (mode) : Climatisation_Reversible Fenêtre : Double Vitrage Cuisine : Ouverte Aménagée Equipée Ascenceur : oui Interphone : oui Charges mensuelles : 744 Numéro de mandat : CART1 Précision localisation : LA GRANDE PLAGE Honoraires à la charge de : Vendeur Bien En copropriété : Oui Nombre de lots de la copropriété : 81 Montant moyen des Charges annuelles : 744 euros Procédure sur le Syndicat des copropriétaires : NC Détail sur la procédure en cours : Pas de procédure en cours
Informations clés
- Prix 183 800 €
- Référence ParuVendu 59365442_CART1
- Nombre de pièces 1 pièce
- Surface 24 m²
- Date DPE 15/04/2026
- Classe énergie A
- Indice d’émissions de gaz à effet de serre A
Diagnostic énergétique


Pour la nouvelle notation (DPE à partir de juillet 2021), c'est la plus mauvaise des deux performances (énergie, climat) qui est retenue.