Appartement T2 au pied des commerces et ligne de bus aux Ponts-de-Cé Les Ponts-de-Cé

PreviousNext

Description

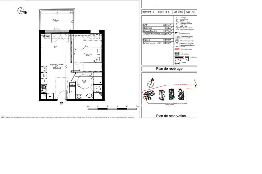
NOUVEAU aux Ponts de Cé, la résidence se développe sur 3 uniques niveaux, en offrant aux habitants la jouissance d'un vaste parc paysager inspiré de ceux des belles demeures situées le long de la Loire. Arrêt de bus à moins de 100m et accès direct à l'A87 et l'A11. A VENDRE type T2 neuf de 38,97m² situé au 2ème étage ( dernier étage) dans cette nouvelle résidence contemporaine comprenant un séjour cuisine de 20,71m² exposé Ouest et ouvert sur un balcon de 6.60m², une chambre de 11,63m², une salle d'eau/WC de 6.62m² .Une place de parking privative et sécurisée complète les lieux. De nombreuses commodités en proximité immédiate: (Intermarché, pharmacie, médecins, centre commercial, restaurants, décathlon) idéal investisseur ou résidence principale Qualité Label Energie RT2020 NF Habitat E+C- Prix: 189 000 euros (+Frais de notaire 2.5%) (Prix direct promoteur) REF: 25909-TERC209 Informations auprès de Gwénaëlle GROU spécialiste neuf Centre-ville d'Angers, quartiers de la Gare, la Madeleine, Doutre, Lafayette, Visitation, place du lycée, Quinconce, Saint Léonard, Jeanne d'Arc et du Lac de Maine, Belle-beille, Avrillé, Saint Barthélemy, Trélazé ... pour trouver votre solution immobilière en Résidence principale ou secondaire, LMNP, Location, Gestion immobilière. "Les informations sur les risques auxquels ce bien est exposé sont disponibles sur le site Géorisques : www.georisques.gouv.fr" Copropriété de 79 lots - dont 79 lots habitation. Etat général : Très bon état Surface séjour : 20.71 Chauffage : Individuel Chauffage (mécanisme) : Radians Chauffage (mode) : Electrique Fenêtre : PVC Double Vitrage Cuisine : Ouverte Ascenceur : oui Fibre optique : Oui Honoraires à la charge de : Vendeur Bien En copropriété : Oui Nombre de lots de la copropriété : 79 Procédure sur le Syndicat des copropriétaires : oui Détail sur la procédure en cours : Procédure en cours Taxe foncière : 0 euros

Informations clés

  • Prix 189 000 €
  • Référence ParuVendu 14103658_25909-TERC209
  • Nombre de pièces 2 pièces
  • Surface 39 m²
  • Date DPE 01/01/1970
  • Classe énergie  NC
  • Indice d’émissions de gaz à effet de serre  NC