RARE Rue Emile Zola T3 BALCON 92m2 Lyon 2
Description
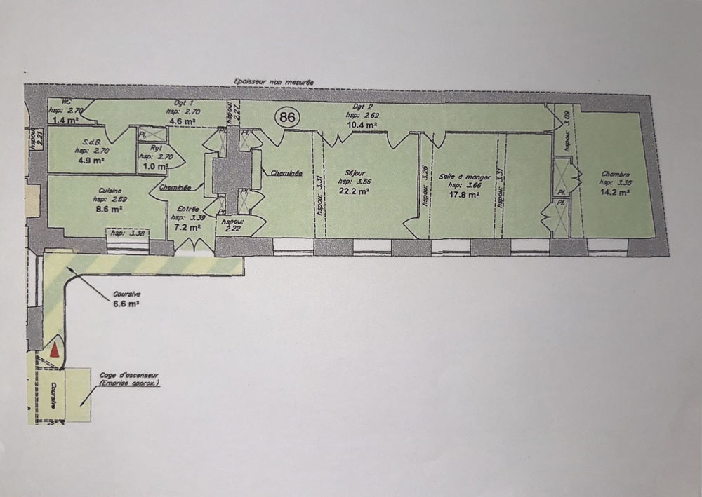
RARE Lyon 2. Coeur Presqu'île. Rue Emile Zola. A quelques pas de la place Bellecour, dans un immeuble ancien de standing avec ascenseur. Venez découvrir ce très bel appartement baigné de lumière, de 92m2 carrez, possédant 5 fenêtres au sud et au calme, sur la spacieuse cour intérieure de l'immeuble, doté d'une coursive à usage exclusive de presque 7m2. Il se compose d’une entrée avec placards, d'une cuisine fermée, d'un dégagement, d'une salle de bains avec coin buanderie, d'un wc séparé, d'un spacieux séjour avec parquet, cheminée et placards, de deux belles chambres de 14 et 18m2 avec placard, Le cachet de l'ancien a été conservé : parquet, cheminée, placards anciens, belle hauteur sous plafond, volets bois intérieurs. Son emplacement d'exception, la luminosité de toutes ses pièces, la possibilié de profiter d'un espace extérieur privatif , font de cet appartement un Bien unique à visiter rapidement.. Parties communes entièrement rénovées. 73 lots principaux. Quote part de charges annuelles 1512 euros avec le fond travaux. Classe energie D, classe Climat D.Energie finale 143Kwh/m2/an. Estimation des couts annuels d’énergie du logement pour un usage standard, entre 1420 et 1950 euros. Honoraires charge vendeur. Pas de procédure en cours. Les informations sur les risques auxquels ce bien est exposé sont disponibles sur le site Géorisques : www.georisques.gouv.fr. Agence ARLIM PRESTIGE Croix-Rousse/Caluire Sandrine OLIVIER ou Détails : Nombre de chambre(s) : 2 Nombre de pièces : 3 Nb de salle de bains : 1 Cuisine : Separee Mode de chauffage : RADIATEUR Type de chauffage : GAZ Format de chauffage : INDIVIDUEL Balcon : 1 Nombre de wc : 1 Honoraires à charge du Vendeur Bien En copropriété : Oui Nombre de lots de la copropriété : 73 Montant moyen des Charges annuelles : 1512 euros Procédure sur le Syndicat des copropriétaires : NOTPROCESS Détail sur la procédure en cours : non
Informations clés
- Prix 510 000 €
- Référence ParuVendu crso2511353-19926
- Nombre de pièces 3 pièces
- Surface 92 m²
- Date DPE 07/11/2025
- Classe énergie C
- Indice d’émissions de gaz à effet de serre D
- Dépenses énergétiques Montant moyen pour 2022 : 1 685 €
Diagnostic énergétique


Pour la nouvelle notation (DPE à partir de juillet 2021), c'est la plus mauvaise des deux performances (énergie, climat) qui est retenue.