Vente Appartement 2 pièces Lyon 3
Description
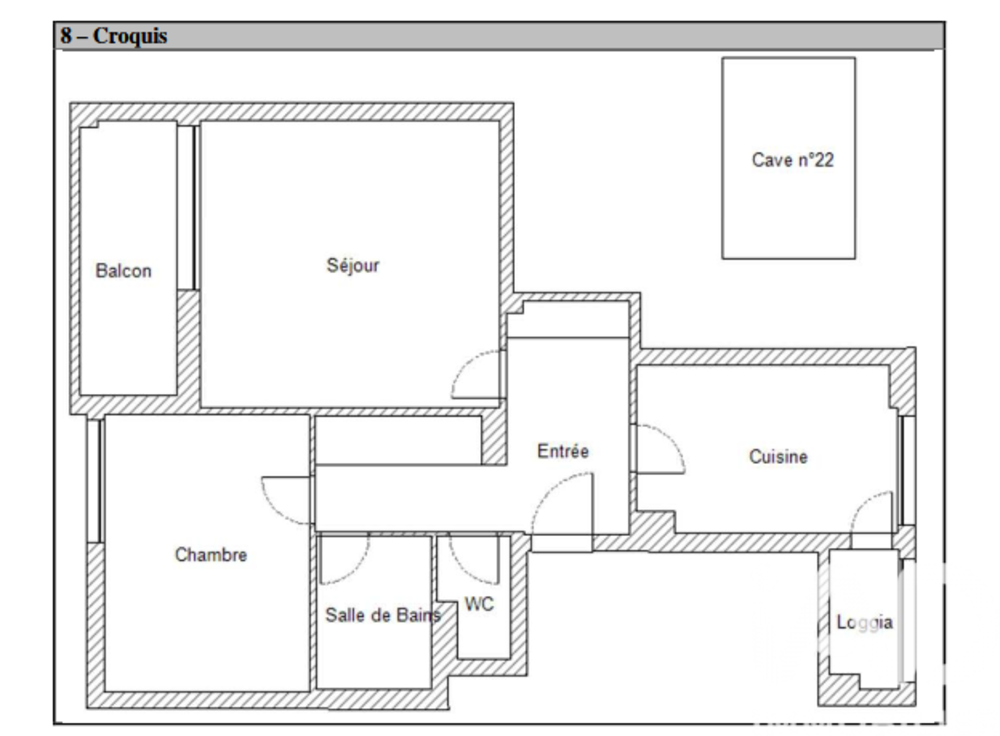
iad France - Stéphane Marvy vous propose: T2 – Lyon 3 – 56 m² – Lumineux & très fort potentiel (T3 possible) Au 5? étage sur 7 d’une résidence bien entretenue de 1970, découvrez ce T2 traversant nord–sud, idéal pour investisseurs, primo-accédants ou retraités recherchant un appartement lumineux, calme et à fort potentiel d’aménagement. L’appartement nécessite une rénovation complète, permettant une totale liberté de projection, avec la possibilité de créer un T3 (en transformant la cuisine en chambre). Les espaces •Hall d’entrée : distribution pratique vers toutes les pièces et grand placard •Séjour plein sud de 18 m² : lumineux, avec accès balcon et vue dégagée •Cuisine indépendante : agréable, sans vis-à-vis, avec accès loggia •Chambre au calme côté cour •Salle de bain •WC indépendant •Grand placard dans le couloir Annexes : grande cave de 5,67 m² et place de parking intérieure (en supplément) Localisation & atouts Un secteur recherché de Lyon 3, parfaitement desservi : •Tous les commerces, écoles, collèges, lycée, cabinets médicaux et kiné •Clinique Émilie de Vialar à 5' •Bus C11, C9, 69, tram T3 et futur T6 à proximité •Gare Part Dieu à 20' à pieds ou 1 arrêt en tram •Résidence sécurisée avec gardien et local vélo •Étage élevé, très belle luminosité, traversant nord-sud •Climatisation possible Idéal pour un projet de résidence principale ou un investissement locatif après travaux. Informations pratiques Copropriété : 52 lots principaux / 60 lots annexes Chauffage collectif Taxe foncière : 1 060 € Charges mensuelles (chauffage, eau froide, entretien de la copropriété, fonds de travaux Alur) : 214 € Loyer encadré majoré en meublé : 985,60 euros hors charges (rentabilité brute hors travaux : 6%) CC HT Numéro de mandat : 1906216 Plus d'information : - Câble TV Honoraires à la charge du Vendeur Bien En copropriété : OUI Nombre de lots de la copropriété : 112 Montant moyen des Charges annuelles : 2568 euros Procédure sur le Syndicat des copropriétaires : NON
Informations clés
- Prix 195 000 €
- Référence ParuVendu 1906216
- Nombre de pièces 2 pièces
- Surface 56 m²
- Date DPE 01/12/2025
- Classe énergie E
- Indice d’émissions de gaz à effet de serre E
- Dépenses énergétiques Montant moyen pour 2023 : 1 480 €
Diagnostic énergétique


Pour la nouvelle notation (DPE à partir de juillet 2021), c'est la plus mauvaise des deux performances (énergie, climat) qui est retenue.