Superbe T2 proche commerces Mainvilliers
Description
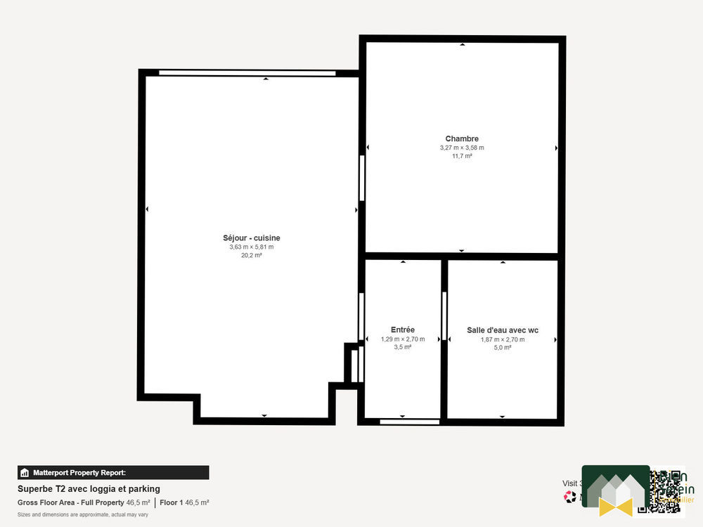
Bienvenue dans votre futur chez vous ! Nous sommes ravis de vous présenter ce beau deux pièces de 39.90 m² situé dans une résidence parfaitement entretenue datant de 2015. Fonctionnel et en parfait état, ce logement est situé à quelques pas des commerces et à seulement 15 minutes à pied de la gare, vous offrira confort de vie et tranquillité. Découvrez un appartement composé comme suit : - Entrée - Pièce de séjour avec cuisine ouverte et balcon - Chambre - Salle d'eau avec WC Espace extérieur : - Balcon avec vue dégagée Côté confort : - Résidence entretenue avec soin - Ascenseur - Parking en sous-sol - Bonne notation énergétique Emplacement stratégique : Cet appartement est idéalement situé pour une vie pratique et agréable : À 5 minutes à pied des arrêts de bus, commerces et restaurants Écoles maternelles et élémentaires accessibles en 15 minutes à pied Collège à 5 minutes en voiture Plusieurs hôpitaux et médecins généralistes à moins de 10 minutes en voiture Contactez votre agent au Noeud Pap' dès aujourd'hui pour découvrir ce bien. Honoraires à la charge du vendeur. Dans une copropriété de 307 lots. Aucune procédure n'est en cours. Classe énergie C, Classe climat C Montant moyen estimé des dépenses annuelles d'énergie pour un usage standard, établi à partir des prix de l'énergie de l'année 2021 : entre 300.00 et 470.00 €. Les informations sur les risques auxquels ce bien est exposé sont disponibles sur le site Géorisques : georisques.gouv.fr. Votre conseiller Bien Serein immobilier : Doriane BARBE Agent commercial (Entreprise individuelle) RSAC 829314210 TTC Numéro de mandat : 460 Honoraires à la charge du Vendeur Bien En copropriété : OUI Nombre de lots de la copropriété : 307 Procédure sur le Syndicat des copropriétaires : NON
Informations clés
- Prix 129 500 €
- Référence ParuVendu VA2447-BIENSEREIN28
- Nombre de pièces 2 pièces
- Surface 40 m²
- Date DPE 16/10/2023
- Classe énergie C
- Indice d’émissions de gaz à effet de serre C
- Dépenses énergétiques Montant moyen pour 2021 : 385 €
- Ce bien fait l'objet d'un état des risques. Les informations sur les risques auxquels ce bien est exposé sont disponibles sur le site Géorisques : https://www.georisques.gouv.fr
Diagnostic énergétique


Pour la nouvelle notation (DPE à partir de juillet 2021), c'est la plus mauvaise des deux performances (énergie, climat) qui est retenue.