Marseille 12ème - T3 80m² - Vue exceptionnelle - Place de stationnement - Cave Marseille 12
Description
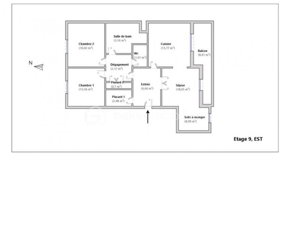
**À vendre : Appartement spacieux à La Fourragère (12ème arrondissement de Marseille)** Venez découvrir cet appartement de 80 m² (loi Carrez) situé au 9ème étage avec ascenseur, dans une résidence sécurisée avec gardien, offrant une vue mer et sur la Bonne Mère de Marseille. Idéalement situé, à proximité des transports en commun, des commerces et du quartier Saint Barnabé. Il se compose comme suit : * Une cuisine ouverte sur un salon lumineux de 41 m², donnant accès à un balcon de 8 m² * Deux chambres 10 m² et 13 m² * Une salle de bain et des toilettes indépendantes * Appartement traversant avec vue dégagée * Possibilité de créer une troisième chambre Pour votre confort, une CAVE et UNE PLACE DE STATIONNEMENT PRIVATIVE viennent compléter le bien. Cette annonce référence 286146 vous est présentée par votre agent commercial BSK Immobilier PATRICIA PIRROTTA (EI) immatriculé au RSAC de TOULON (83000) sous le numéro 90132710600026. Prix du bien : 215 000,00 € Prix du bien hors honoraires : 206 400,00 € Honoraires TTC : 4,17 % Les honoraires d'agence sont à la charge de l'acquéreur. A propos de la copropriété : Pas de procédure en cours. Nombre de lots : 3 Charges prévisionnelles annuelles : 3 400,00 € A propos des performances énergétiques : Date de réalisation du diagnostic énergétique : 20/03/2025 Score DPE : 160 kWhEP/m²/an Score GES : 33 kgepCO2/m²/an Montant estimé des dépenses annuelles d'énergie pour un usage standard : entre 1020.00 € et1430.00 € par an. Prix moyens des énergies indexés sur l'année 2023 (abonnements compris). Les informations sur les risques auxquels ce bien est exposé sont disponibles sur le site Géorisques : www.georisques.gouv.fr Nom du négociateur : PATRICIA PIRROTTA Prix net vendeur : 206400 euros Honoraires à la charge de l'Acquéreur : oui Bien En copropriété : oui Nombre de lots de la copropriété : 3 Montant moyen des Charges annuelles : 3400 euros Statut du négociateur : agent commercial indépendant
Informations clés
- Prix 215 000 €
- Référence ParuVendu 286146_1
- Nombre de pièces 3 pièces
- Surface 80 m²
- Date DPE 20/03/2025
- Classe énergie D
- Indice d’émissions de gaz à effet de serre D
- Dépenses énergétiques Montant moyen : 1 225 €
Diagnostic énergétique


Pour la nouvelle notation (DPE à partir de juillet 2021), c'est la plus mauvaise des deux performances (énergie, climat) qui est retenue.