Vente Duplex 3 pièces Menton
Description
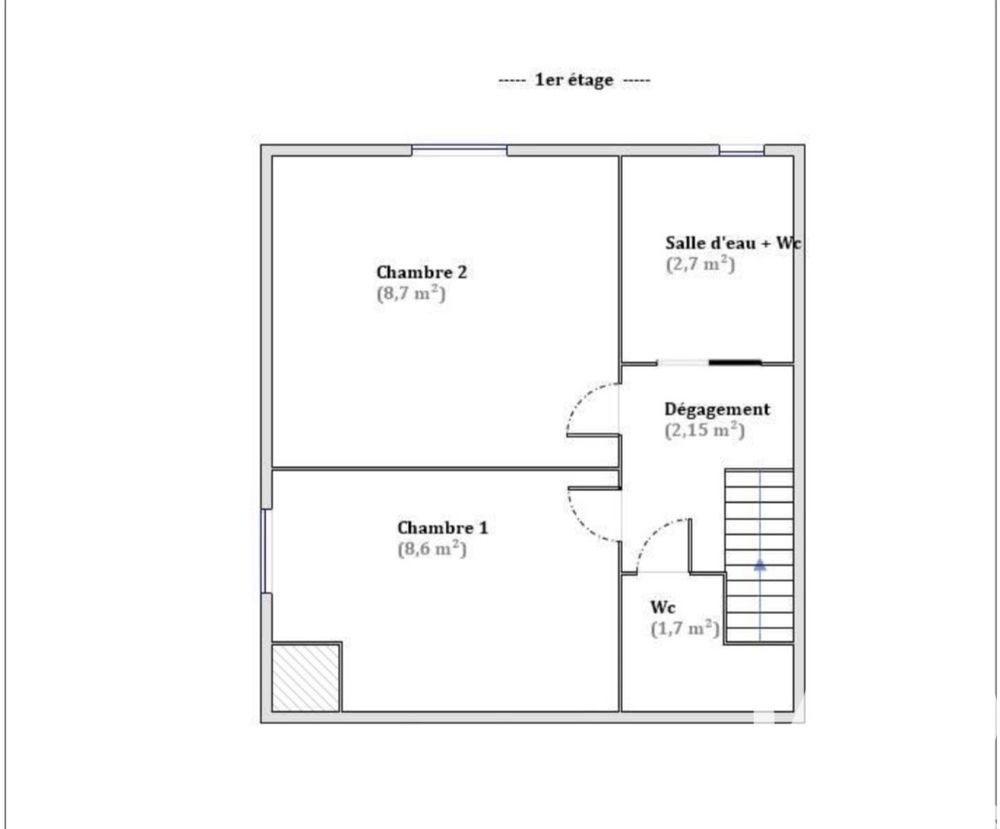
iad France - Anissa Meguelati vous propose: COMME UNE MAISON - appartement en duplex de 80 m² habitables - Menton D'une surface de 51 m² Loi Carrez, cet appartement développe 80 m² de surface habitable offrant des volumes agréables. Au rez-de-chaussée découvrez une entrée fonctionnelle, un séjour chaleureux ouvert sur une cuisine aménagée et équipée, une véranda entièrement isolée et chauffée qui prolonge harmonieusement l'espace de vie et apporte une belle luminosité au séjour, un vaste cellier/buanderie et une salle de douche avec WC. A l'étage, l'espace nuit se compose de deux chambres, une salle de bains et un WC séparé. Une vaste place de parking abritée complète ce bien. Situé dans un environnement calme, proche de toutes les commodités et à 10 min en voiture des plages, ce duplex est idéal pour un couple ou une famille. Honoraires d'agence à la charge du vendeur. Information d'affichage énergétique sur ce bien : classe ENERGIE D indice 243 et classe CLIMAT B indice 7. Les informations sur les risques auxquels ce bien est exposé, y compris l'obligation légale de débroussaillement, sont disponibles sur le site Géorisques : La présente annonce immobilière a été rédigée sous la responsabilité éditoriale de Mme Anissa Meguelati mandataire indépendant en immobilier (sans détention de fonds), agent commercial de la SAS I@D France immatriculé au RSAC de NICE sous le numéro 534995790, titulaire de la carte de démarchage immobilier pour le compte de la société I@D France SAS. CC HT Numéro de mandat : 1955778 Plus d'information : - Climatisation Honoraires à la charge du Vendeur Bien En copropriété : NON
Informations clés
- Prix 289 000 €
- Référence ParuVendu 1955778
- Nombre de pièces 3 pièces
- Surface 51 m²
- Date DPE 07/08/2025
- Classe énergie D
- Indice d’émissions de gaz à effet de serre B
- Dépenses énergétiques Montant moyen pour 2023 : 1 405 €
Diagnostic énergétique


Pour la nouvelle notation (DPE à partir de juillet 2021), c'est la plus mauvaise des deux performances (énergie, climat) qui est retenue.