secteur Chatelet Montorgueil ,au 1 er étage 3 piece a rénover Paris 2
Description
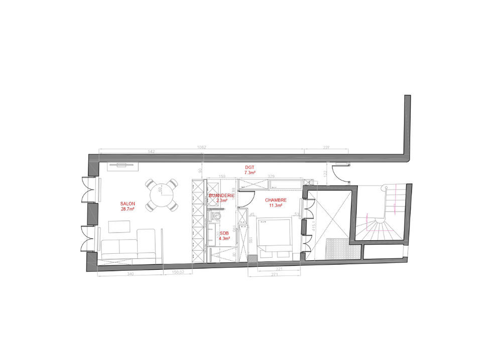
Vente d'un appartement trois pièces à Paris 2ème - Secteur Montorgueil Description du bien Situé dans le 2ème arrondissement de Paris, secteur Montorgueil, à proximité du métro Sentier, cet appartement trois pièces se trouve au premier étage d'un immeuble équipé d'un ascenseur. Disposition et caractéristiques Le bien comprend une entrée, un séjour, deux chambres et une salle de bain. L'appartement bénéficie d'une double exposition sur rue et sur cour. Des travaux sont à prévoir, offrant ainsi une opportunité de personnalisation. Potentiel de restructuration Il est possible de restructurer l'appartement en deux pièces, comprenant un double séjour, une chambre, une salle de bain et une cuisine. Informations complémentaires ?Surface : 53 m² ?Prix de vente : 540 000 euros FAI ?Contact : (5.88 % honoraires TTC à la charge de l'acquéreur.) Copropriété de 27 lots (). Surface séjour : 20 Numéro de mandat : 1163 Honoraires à la charge de : Acquéreur Pourcentage des Honoraires à la charge de l'Acquéreur : 5.88 % Prix net vendeur : 510000 euros Bien En copropriété : Non Procédure sur le Syndicat des copropriétaires : NC
Informations clés
- Prix 540 000 €
- Référence ParuVendu 58825227_1163
- Nombre de pièces 3 pièces
- Surface 53 m²
- Date DPE 08/07/2025
- Classe énergie G
- Indice d’émissions de gaz à effet de serre G
Diagnostic énergétique


Pour la nouvelle notation (DPE à partir de juillet 2021), c'est la plus mauvaise des deux performances (énergie, climat) qui est retenue.