Métro Convention - Paris 15e | Studio ensoleillé en excellent état et avec Balcon/Terrasse Paris 15
Description
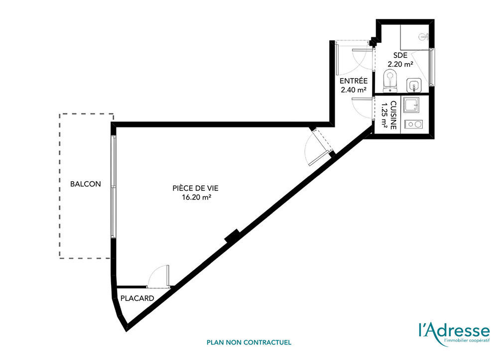
Votre agence l'Adresse Cambronne Paris 15 vous propose ce studio de 22 m2 + balcon, parfaitement agencé et en excellent état, situé à seulement 3 minutes à pied du métro Convention. Au 4eme étage avec ascenseur d'une copropriété récente et bien entretenue, vous apprécierez son ensoleillement et sa vue dégagée. Il se compose : d'une entrée, d'une pièce de vie de 16.20 m² donnant sur le balcon/terrasse ensoleillé, d'une cuisine séparée, d'une salle d'eau avec WC. AUCUN TRAVAUX à prévoir, idéal pour un premier achat ou un investissement locatif. Emplacement recherché, à proximité immédiate des commerces et du marché de la rue de la Convention Un bien rare sur le secteur ! A visiter sans tarder ! _________________________________ Transports à proximité Métro : - Ligne 12, arrêt Convention : 3 min BUS : - 39, 80 et 62 : 2 min (5.71 % honoraires TTC à la charge de l'acquéreur.) Copropriété de 24 lots - dont 20 lots habitation. Charges annuelles : 2413.12 euros. Année de construction : 1972 Chauffage : Collectif Chauffage (mécanisme) : Radiateur Chauffage (mode) : Gazdeville Fenêtre : Double Vitrage Cuisine : Indépendante Aménagée Ascenceur : oui Fibre optique : Oui Numéro de mandat : 353 * Visite virtuelle : https://my.matterport.com/show/?m=ATHFhL1FiNt Honoraires à la charge de : Acquéreur Pourcentage des Honoraires à la charge de l'Acquéreur : 5.71 % Prix net vendeur : 210000 euros Bien En copropriété : Oui Nombre de lots de la copropriété : 24 Montant moyen des Charges annuelles : 2413.12 euros Procédure sur le Syndicat des copropriétaires : NC Détail sur la procédure en cours : Pas de procédure en cours
Informations clés
- Prix 222 000 €
- Référence ParuVendu 14255899_1514
- Nombre de pièces 1 pièce
- Surface 22 m²
- Date DPE 30/09/2025
- Classe énergie E
- Indice d’émissions de gaz à effet de serre D
- Ce bien fait l'objet d'un état des risques. Les informations sur les risques auxquels ce bien est exposé sont disponibles sur le site Géorisques : https://www.georisques.gouv.fr
- Date ERP 30/09/2025
Diagnostic énergétique


Pour la nouvelle notation (DPE à partir de juillet 2021), c'est la plus mauvaise des deux performances (énergie, climat) qui est retenue.