Appartement d'exception avec vue Tour Eiffel Paris 16 4 pièce(s) 104.2 m2 Paris 16

PreviousNext

Description

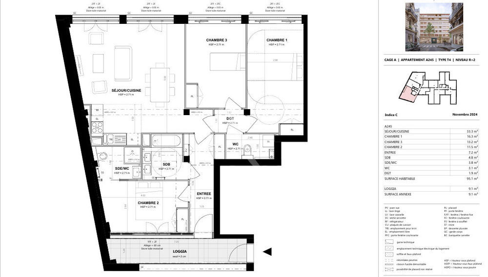
Une réalisation d'exception mêlant réhabilitation d'un patrimoine existant et construction neuve, au coeur du très prisé 16e arrondissement de Paris. Idéalement située au 19 rue de Passy, cette adresse d'exception N.19 PASSY conjugue élégance intemporelle et modernité architecturale. Les appartements, du studio au 5 pièces (DUPLEX,TRIPLEX), se distinguent par leurs volumes généreux, leurs prestations haut de gamme et leurs espaces extérieurs privatifs : terrasses, loggias ou jardins suspendus. Certains logements bénéficient de vues remarquables sur les toits de Paris et la Tour Eiffel, offrant un art de vivre unique entre histoire et contemporanéité. Contactez-nous dès maintenant pour plus d'informations et pour organiser une visite ! LES + ARGOS CONSEIL : Prix direct promoteur (possibilité d'offres commerciales ou de frais de notaire offerts selon offres commerciales) Possibilité de rendez vous physique dans nos bureaux Accès à plus de 600 programmes en Ile de France et 3.000 en France Frais de notaire réduit Possibilité de TVA réduite (Selon éligibilité) Accompagnement dans les démarches administratives et suivi avec les promoteurs Accompagnement dans la sélection de biens immobiliers Les honoraires sont à la charge du vendeur Accompagnement dans l'obtention du financement Bien En copropriété : Non Procédure sur le Syndicat des copropriétaires : NC

Informations clés

  • Prix 1 365 000 €
  • Référence ParuVendu 14202344_9711
  • Nombre de pièces 4 pièces
  • Surface 104 m²
  • Date DPE 01/01/1970
  • Classe énergie  NC
  • Indice d’émissions de gaz à effet de serre  NC