Rognes – T3 lot 110 neuf avec loggia, exposition Sud et box ferm Rognes
Description
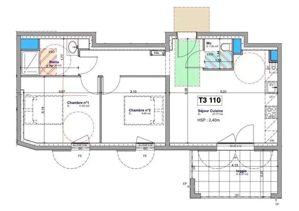
Bienvenue chez Abriculteurs, l'agence familiale qui s'engage à un service immobilier d'exception. Faites confiance à notre expertise pour transformer vos projets immobiliers en réussites remarquables. Dans le charmant village de Rognes, au cœur de la nouvelle place de village, découvrez ce T3 lumineux de 55,61 m², situé au 1er étage d’une résidence neuve de standing avec ascenseur et box fermé en sous-sol. L’appartement comprend une belle pièce de vie de 27,77 m² avec cuisine ouverte donnant sur une loggia de 8,37 m² exposée plein Sud, deux chambres de 11,65 m² et 9,88 m², une salle de bain de 2,78 m² et des WC séparés. Les + du programme : - Loggia bien orientée, à l’abri des regards - Exposition Sud idéale - Résidence neuve avec ascenseur et prestations de qualité - Box fermé sécurisé en sous-sol - Éligible au nouveau PTZ dès le 1er avril 2025 Prix de vente : 280.000 euros TTC (Honoraires à la charge du vendeur) D’autres lots sont disponibles, T2 et T3 de 35 à 65 m². Envie d’en savoir plus ? Contactez-nous ! Ce bien a retenu votre intérêt ? Pour organiser la visite avec nous, rien de plus simple, prenez rendez-vous en ligne au moment qui vous convient le mieux. Les informations sur les risques auxquels ce bien est exposé sont disponibles sur le site Géorisques : www.georisques.gouv.fr. Annonce rédigée sous la responsabilité éditoriale de Mme PEFFERT Laura , agent commercial (EI), immatriculé au RSAC de Salon-de-Provence sous le n° 904 617 404, sans détention de fonds, agissant pour le compte de la SARL Abriculteurs immobilier, au capital de 5 000 euros, immatriculée sous le SIREN n° 837 704 584, titulaire de la carte professionnelle n° CPI 7525 842 délivrée par la CCI de Paris Île-de-France, dont le représentant légal est M. Adrien Piot, ayant son siège social au 12 rue des Halles, 75001 Paris. Numéro de mandat : 962 Plus d'information : - Aménagement pour handicapés Honoraires à la charge du Vendeur Bien En copropriété : NON
Informations clés
- Prix 285 000 €
- Référence ParuVendu LPVA3585
- Nombre de pièces 3 pièces
- Surface 56 m²
- Date DPE 30/12/2025
- Classe énergie A
- Indice d’émissions de gaz à effet de serre A
- Ce bien fait l'objet d'un état des risques. Les informations sur les risques auxquels ce bien est exposé sont disponibles sur le site Géorisques : https://www.georisques.gouv.fr
Diagnostic énergétique


Pour la nouvelle notation (DPE à partir de juillet 2021), c'est la plus mauvaise des deux performances (énergie, climat) qui est retenue.