Rognes – T3 lot 113 neuf avec loggia exposée Sud-Ouest et box fe Rognes
Description
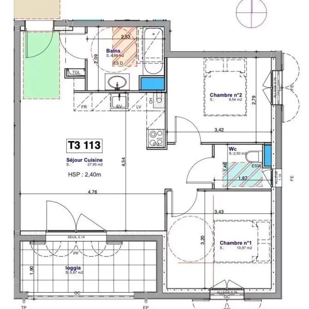
Bienvenue chez Abriculteurs, l'agence familiale qui s'engage à un service immobilier d'exception. Faites confiance à notre expertise pour transformer vos projets immobiliers en réussites remarquables. Dans le cœur du village de Rognes, sur la nouvelle place, découvrez ce T3 de 55,85 m², situé au 1er étage d’une résidence de standing avec ascenseur, disposant d’un box fermé en sous-sol. L’appartement se compose d’une belle pièce de vie de 27,95 m² avec cuisine ouverte donnant sur une loggia de 5,87 m² exposée Sud-Ouest, deux chambres de 10,97 m² et 9,54 m², une salle de bain de 4,89 m² et des WC séparés de 2,50 m². Les + du programme : Résidence neuve avec ascenseur Loggia bien orientée, Sud-Ouest Box fermé sécurisé en sous-sol Éligibilité au nouveau PTZ dès le 1er avril 2025 Prix de vente : 287 200 euros TTC (Honoraires à la charge du vendeur) T2 et T3 de 35 à 65 m² encore disponibles. Contactez-nous pour en savoir plus ! Ce bien a retenu votre intérêt ? Pour organiser la visite avec nous, rien de plus simple, prenez rendez-vous en ligne au moment qui vous convient le mieux. Les informations sur les risques auxquels ce bien est exposé sont disponibles sur le site Géorisques : www.georisques.gouv.fr. Annonce rédigée sous la responsabilité éditoriale de Mme PEFFERT Laura , agent commercial (EI), immatriculé au RSAC de Salon-de-Provence sous le n° 904 617 404, sans détention de fonds, agissant pour le compte de la SARL Abriculteurs immobilier, au capital de 5 000 euros, immatriculée sous le SIREN n° 837 704 584, titulaire de la carte professionnelle n° CPI 7525 842 délivrée par la CCI de Paris Île-de-France, dont le représentant légal est M. Adrien Piot, ayant son siège social au 12 rue des Halles, 75001 Paris. Numéro de mandat : 962 Plus d'information : - Aménagement pour handicapés Honoraires à la charge du Vendeur Bien En copropriété : NON
Informations clés
- Prix 289 000 €
- Référence ParuVendu LPVA3586
- Nombre de pièces 3 pièces
- Surface 56 m²
- Date DPE 29/01/2026
- Classe énergie A
- Indice d’émissions de gaz à effet de serre A
- Ce bien fait l'objet d'un état des risques. Les informations sur les risques auxquels ce bien est exposé sont disponibles sur le site Géorisques : https://www.georisques.gouv.fr
Diagnostic énergétique


Pour la nouvelle notation (DPE à partir de juillet 2021), c'est la plus mauvaise des deux performances (énergie, climat) qui est retenue.