À vendre T3 Duplex 52,56 m² – Romans-sur-Isère (centre) Romans-sur-Isère
Description
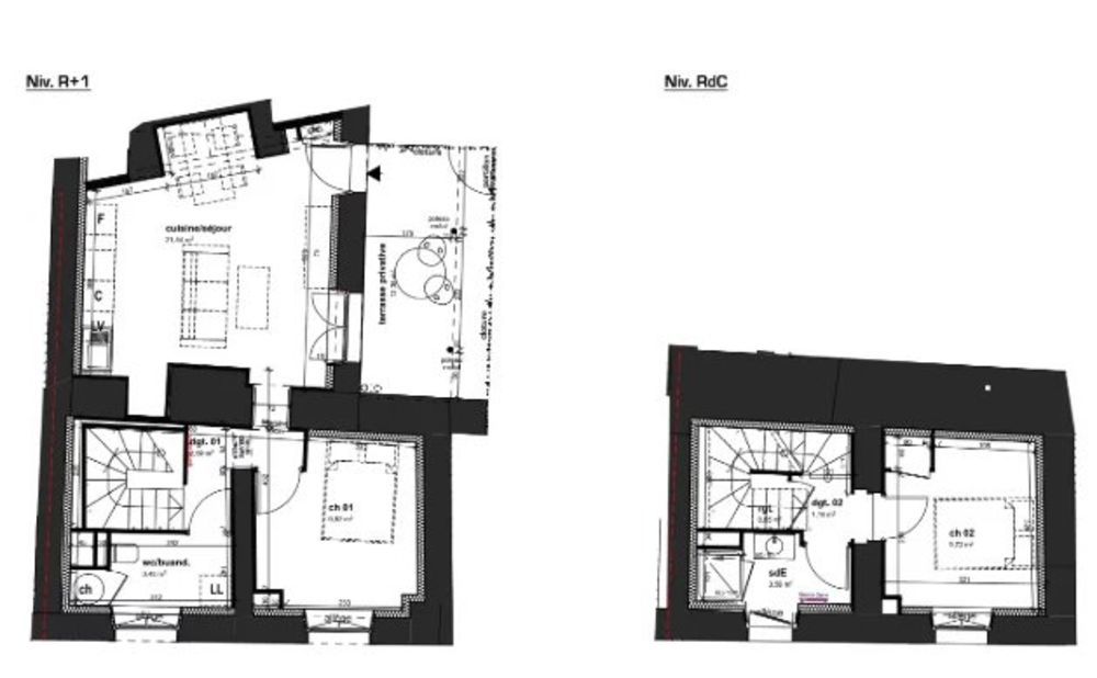
Au sein de Le Saint-Just, réhabilitation d’un ancien couvent, ce T3 duplex offre une distribution optimisée : séjour/cuisine de plus de 21 m², de 2 chambres dont , d'une salle de douche et d'une terrasse de plus de 12m² La résidence propose un cadre agréable en cœur de ville, proche des commodités et lieux culturels. Investissement : Eligible déficit foncier Malraux de Normandie Bailleur privé Simulation fiscale certifiés sur chaque bien Pour plus d'information, merci de nous contacter directement. Numéro de mandat : 26ROMISBMPSTJU110 Honoraires à la charge de l'Acquéreur : NON Bien En copropriété : NON
Informations clés
- Prix 295 000 €
- Référence ParuVendu 26ROMISBMPSTJU110
- Nombre de pièces 3 pièces
- Surface 53 m²
- Date DPE 05/02/2026
- Classe énergie C
- Indice d’émissions de gaz à effet de serre C
Diagnostic énergétique


Pour la nouvelle notation (DPE à partir de juillet 2021), c'est la plus mauvaise des deux performances (énergie, climat) qui est retenue.