Appartement - 2 pièce(s) - 41 m² Saint-Denis

PreviousNext

Description

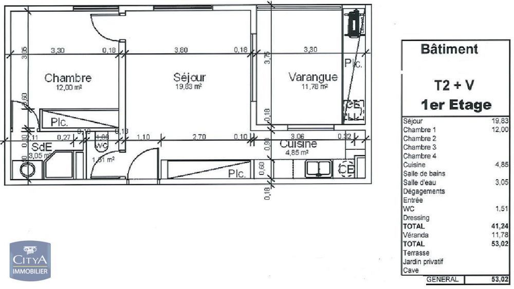
Bellepierre - Appartement T2 avec varangue et parking - Situé dans le secteur très recherché de Bellepierre, dans les hauteurs de Saint-Denis, cet agréable appartement 2 pièces se trouve au sein de la Résidence Les Restanques, calme et bien entretenue construite en 2007. Situé au premier étage avec ascenseur, il offre un cadre de vie agréable, sans vis-à-vis. L'appartement sera disponible à partir de janvier 2027 (peut être libéré avant) D'une surface habitable de 41,24 m², l'appartement se compose d'une pièce de vie lumineuse d'environ 20 m² avec une cuisine aménagée et semi-équipée (hotte, plaques de cuisson et mini-réfrigérateur). L'espace nuit comprend une chambre confortable d'environ 12 m² avec de grands placards intégrés, offrant de nombreux rangements. Une salle d'eau fonctionnelle ainsi que des toilettes séparées complètent l'ensemble. Le séjour s'ouvre sur une belle varangue couverte d'environ 11,78 m², véritable prolongement de l'espace de vie, idéale pour profiter de moments de détente en toute tranquillité. Ce bien dispose également d'une place de parking en sous-sol, un avantage appréciable dans ce secteur. Données financières : taxe foncière : 1152 euros charges de copropriété annuelles : 1444 euros loyer actuel : 645.31 euros par mois L'emplacement est un véritable atout : la résidence se situe à seulement 15 minutes du centre-ville de Saint-Denis, à environ 10 minutes du CHU Félix Guyon, à proximité immédiate des commerces, de l'IUFM de La Réunion et de l'accès au Boulevard Sud. Un arrêt de bus se trouve au pied de la résidence et permet de rejoindre facilement le centre-ville. Ce bien constitue une excellente opportunité, aussi bien pour un investisseur à la recherche d'un placement sûr que pour un futur propriétaire souhaitant s'y installer. Informations et Visite avec Mr RINGUIN ou . Le bien est soumis au statut de la copropriété , la copropriété comporte 100 lots. Honoraires à la charge du vendeur. Vous pouvez consulter les barèmes d'honoraires à l'adresse suivante : . Les informations sur les risques auxquels ce bien est exposé sont disponibles sur le site Géorisques : https://www.georisques.gouv.fr

Informations clés

  • Prix 121 000 €
  • Référence ParuVendu TAPP968301
  • Nombre de pièces 2 pièces
  • Surface 41 m²
  • Date DPE 01/01/1970
  • Classe énergie  NC
  • Indice d’émissions de gaz à effet de serre  NC