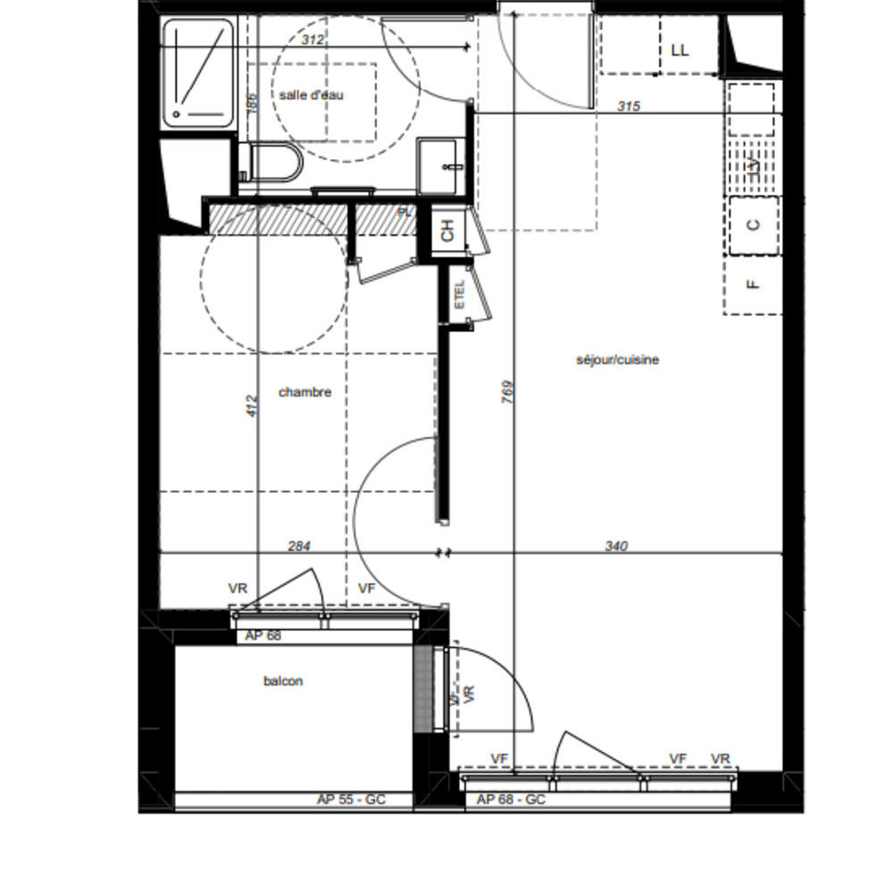
Programme neuf Saint Nazaire 2 pièce(s) 41.80 m2 Saint-Nazaire
Slide 1 of 2 
Slide 2 of 2 
Description
Coeur de ville tout à pied, programme neuf livraison 2025. Prix promoteur. Jeremy DENIAU (EI) Agent Commercial - Numéro RSAC : 819837279 - . Numéro de mandat : 1367 Bien En copropriété : Non Procédure sur le Syndicat des copropriétaires : NC
Informations clés
- Prix 224 000 €
- Référence ParuVendu 55094099_JD1367
- Nombre de pièces 2 pièces
- Surface 42 m²
- Date DPE 01/01/1970
- Classe énergie NC
- Indice d’émissions de gaz à effet de serre NC