Appartement de type 2 entre Plage et Centre ville - Quartier Villes Martin à SAINT NAZAIRE Saint-Nazaire

PreviousNext

Description

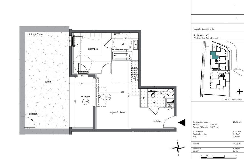
A quelques pas des plages de Villès Martin t de sa base nautique, cette nouvelle construction offre un parfait équilibre entre tranquillité et animation urbaine. Vous y trouverez toutes les commodités y compris un arrêt de bus au pied pour rejoindre le centre ville en moins de 10 min et la gare en moins de 15 min. A VENDRE appartement Type T2 Neuf de 44,05m² comprenant un séjour cuisine de 20.18m² ouvert sur une terrasse de 8,54 et un jardin privatif de 33m² orienté Ouest, une chambre de 10,87m² et une salle de bains de 5,15m² et WC séparé. idéal résidence secondaire ou Résidence principale Label Energie RE2020 norme PMR (personne à mobilité réduite) Prix: 235 000 euros TTC (Prix direct promoteur) REF: 31637-MarinA02 "Les informations sur les risques auxquels ce bien est exposé sont disponibles sur le site Géorisques : www.georisques.gouv.fr" Copropriété de 38 lots - dont 38 lots habitation.(Pas de procédure en cours). Etat général : Excellent Surface séjour : 20.18 Surface terrasse : 8 Chauffage : Individuel Chauffage (mécanisme) : Radiateur Chauffage (mode) : Electrique Fenêtre : PVC Double Vitrage Cuisine : Ouverte Ascenceur : oui Fibre optique : Oui Précision localisation : VILLES MARTIN Honoraires à la charge de : Vendeur Bien En copropriété : Oui Nombre de lots de la copropriété : 38 Procédure sur le Syndicat des copropriétaires : NC Détail sur la procédure en cours : Pas de procédure en cours Taxe foncière : 0 euros

Informations clés

  • Prix 235 000 €
  • Référence ParuVendu 13710544_31637-MarinA02
  • Nombre de pièces 2 pièces
  • Surface 44 m²
  • Date DPE 01/01/1970
  • Classe énergie  NC
  • Indice d’émissions de gaz à effet de serre  NC