SAINT-NAZAIRE TOUT À PIED Saint-Nazaire
Description
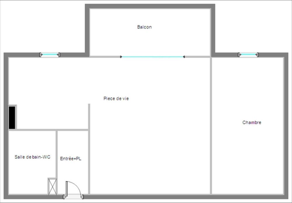
SAINT-NAZAIRE Secteur Théâtre et Dolmen Coup de cœur assuré pour ce lumineux T2 ! ??? Situé dans un cadre calme et recherché, ce charmant appartement de 2008 vous séduira par ses volumes généreux et sa luminosité. Profitez d'un séjour baigné de lumière donnant sur un balcon de 8m², idéal pour vos moments de détente. Cuisine ouverte, chambre confortable, salle de bain fonctionnelle... Tout est réuni pour vous sentir chez vous ! Les plus : Peinture neuve, copropriété sécurisée avec ascenseur, place de parking privative. Idéal premier achat ou investissement locatif. Le bien comprend 2 lots, et il est situé dans une copropriété de 60 lots (les charges courantes annuelles moyennes de copropriété sont de 780 € et le syndicat des copropriétaires ne fait pas l'objet d'une procédure citée à l'article L. 721-1 du code de la construction et de l'habitation). Les informations sur les risques auxquels ce bien est exposé sont disponibles sur le site Géorisques : www.georisques.gouv.fr Prix de vente : 162 000 € Honoraires charge vendeur Contactez votre conseiller SAFTI : Julie GUILLON - EI - Agent commercial immatriculé au RSAC de Saint-Nazaire sous le numéro 839914017 Honoraires à la charge du Vendeur Bien En copropriété : OUI Nombre de lots de la copropriété : 60 Montant moyen des Charges annuelles : 780 euros Procédure sur le Syndicat des copropriétaires : NON
Informations clés
- Prix 162 000 €
- Référence ParuVendu 1411192_30081
- Nombre de pièces 2 pièces
- Surface 49 m²
- Date DPE 08/10/2024
- Classe énergie D
- Indice d’émissions de gaz à effet de serre B
- Dépenses énergétiques Montant moyen pour 2021 : 945 €
Diagnostic énergétique


Pour la nouvelle notation (DPE à partir de juillet 2021), c'est la plus mauvaise des deux performances (énergie, climat) qui est retenue.