Très bel appartement de type 3 idéalement situé dans le centre ville de Saint Nazaire Saint-Nazaire

PreviousNext

Description

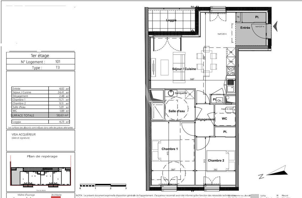
A vendre, cet élégant appartement de type 3 d'une superficie de 58 m² vous offre un cadre de vie exceptionnel. Avec une orientation EST, la loggia adjacente permet de profiter pleinement de la lumière naturelle L'intérieur de l'appartement est composé d'un séjour/cuisine spacieux de 24,41 m², créant un espace de vie convivial. Les deux chambres, respectivement de 9,11 m² et 11,71 m², offrent des dimensions confortables. La salle d'eau, accompagnée d'un WC séparé, complète harmonieusement l'espace intérieur. Un atout supplémentaire, une place de parking est incluse, garantissant praticité et facilité au quotidien. Situé au Coeur de saint Nazaire, cet appartement offre un accès facile aux commodités locales, aux écoles et aux transports en commun. Label Energie RT 2012 Prix: 248 000 euros TTC (+ frais notaire réduits 2.5%) Prix direct promoteur REF: 32970Gar101 "Les informations sur les risques auxquels ce bien est exposé sont disponibles sur le site Géorisques : www.georisques.gouv.fr" Copropriété de 19 lots - dont 19 lots habitation.(Pas de procédure en cours). Etat général : Excellent Surface séjour : 25.08 Surface terrasse : 23 Chauffage : Individuel Chauffage (mécanisme) : Radiateur Chauffage (mode) : Gaz Fenêtre : PVC Double Vitrage Cuisine : Ouverte Ascenceur : oui Numéro de mandat : 32970 Précision localisation : CENTRE VILLE Honoraires à la charge de : Vendeur Bien En copropriété : Oui Nombre de lots de la copropriété : 19 Procédure sur le Syndicat des copropriétaires : NC Détail sur la procédure en cours : Pas de procédure en cours Taxe foncière : 0 euros

Informations clés

  • Prix 248 000 €
  • Référence ParuVendu 13514436_32970Gar101
  • Nombre de pièces 3 pièces
  • Surface 59 m²
  • Date DPE 01/01/1970
  • Classe énergie  NC
  • Indice d’émissions de gaz à effet de serre  NC