Vente Appartement 3 pièces Sautron
Description
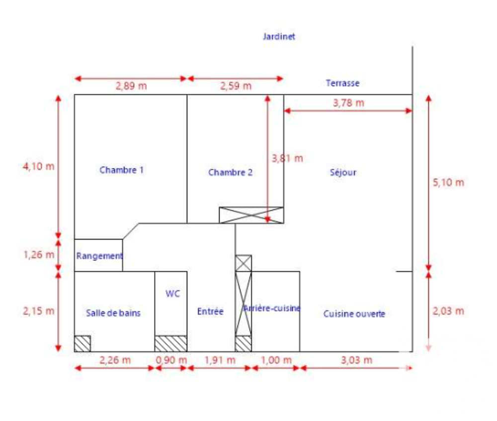
iad France - Marie-Claude HARDY vous propose: SAUTRON - Appartement avec terrasse et jardin, dans résidence en impasse, au calme et à proximité de toutes les commodités. Il se compose d'une entrée avec placard desservant une pièce de vie avec cuisine ouverte et son arrière-cuisine, deux chambres, une salle de bain et des toilettes séparées. Un garage box en sous-sol complète ce bien. Appartement vendu avec locataire en place. Contactez-moi pour plus d'informations. La presente annonce immobiliere vise 2 lots situés dans une copropriété de 101 lots au total et ne faisant l'objet d'aucune procédure en cours citée à l'article L. 721-1 du code de la construction et de l'habitation. Montant moyen mensuel de charges déclaré par le vendeur : 92€ par mois (soit 1104 € annuel). Honoraires d'agence à la charge du vendeur. Information d'affichage énergétique sur ce bien : classe ENERGIE C indice 90 et classe CLIMAT C indice 17. Les informations sur les risques auxquels ce bien est exposé, y compris l'obligation légale de débroussaillement, sont disponibles sur le site Géorisques : La présente annonce immobilière a été rédigée sous la responsabilité éditoriale de Mme Marie-Claude HARDY mandataire indépendant en immobilier (sans détention de fonds), agent commercial de la SAS I@D France immatriculé au RSAC de nantes sous le numéro 832 940 563, titulaire de la carte de démarchage immobilier pour le compte de la société I@D France SAS. CC HT Numéro de mandat : 1796920 Honoraires à la charge du Vendeur Bien En copropriété : OUI Nombre de lots de la copropriété : 101 Montant moyen des Charges annuelles : 1104 euros Procédure sur le Syndicat des copropriétaires : NON
Informations clés
- Prix 219 000 €
- Référence ParuVendu 1796920
- Nombre de pièces 3 pièces
- Surface 65 m²
- Date DPE 27/06/2025
- Classe énergie C
- Indice d’émissions de gaz à effet de serre C
- Dépenses énergétiques Montant moyen pour 2023 : 800 €
Diagnostic énergétique


Pour la nouvelle notation (DPE à partir de juillet 2021), c'est la plus mauvaise des deux performances (énergie, climat) qui est retenue.