Appartement - 5 pièce(s) - 128 m² Tassin-la-Demi-Lune
Description
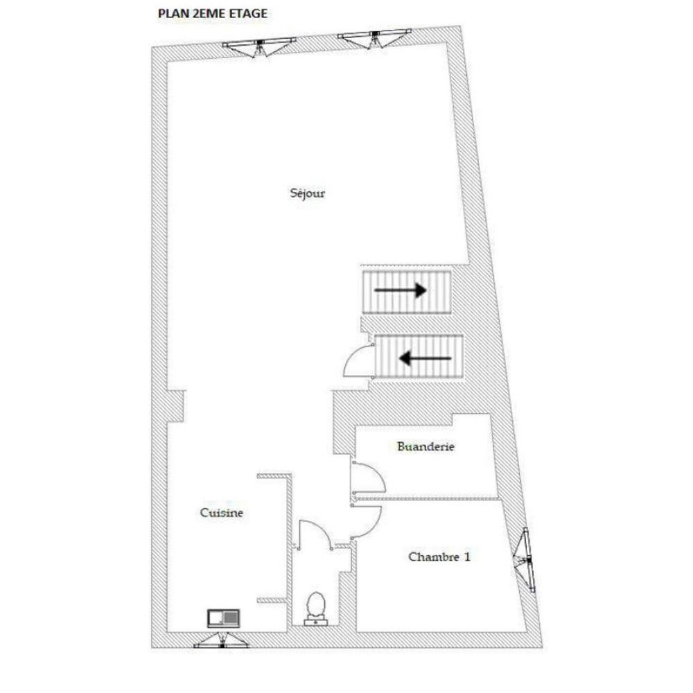
Dans petite résidence intimiste, au 2emé étage en duplex, appartement atypique. pièce de vie, ouvert sur le salon/séjour avec cuisine équipée, cellier/buanderie, Wc séparée, salle d'eau. A l'étage nous avons un espace bureau, une chambre-salon TV, une suite parentale avec dressing et salle de bains (Wc,Baignoire et douche) Au clame sans vis à vis. Vendu avec un Garage double et deux places de parkings ----------------------------------------------- Copropriété est composée de 3 lots ----------------------------------- Pour plus d'informations, nous contacter --------------------------------- « Les informations sur les risques auxquels ce bien est exposé sont disponibles sur le site Géorisques : www.georisques.gouv.fr » Descriptif : - Surface habitable : 128 - Surface carrez : 112 - Surface aménageable : 128 - Surface du séjour : 64 - Surface cuisine : 8 - Surface du bureau : 10 - Nbre. d'étages : 3 - Étage du bien : 2 - Nbre. de chambres : 3 - Nb. de pièces : 5 - Nb. de salles de bain : 1 - Nb. de salles d'eau : 1 - Nb. de WC : 2 - Garage - Label : T5 128M² Garages Bien En copropriété : Non
Informations clés
- Prix 499 000 €
- Référence ParuVendu 9744
- Nombre de pièces 5 pièces
- Surface 128 m²
- Date DPE 01/01/2024
- Classe énergie D
- Indice d’émissions de gaz à effet de serre A
- Dépenses énergétiques Montant moyen pour 2022 : 1 860 €
Diagnostic énergétique


Pour la nouvelle notation (DPE à partir de juillet 2021), c'est la plus mauvaise des deux performances (énergie, climat) qui est retenue.