Appartement 3 pièces 76 m² à vendre Versailles Montreuil Terrasse, balcon, ascenseur parking, cave Versailles
Description
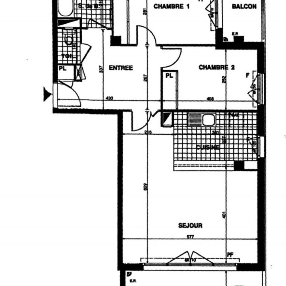
A Versailles ville du Roi Soleil, au coeur du très prisé quartier Montreuil, découvrez ce bel appartement 3 pièces de 76 m² environ en excellent état, situé dans une résidence récente (2008) avec ascenseur. Parfaitement agencé, il offre un Grand séjour lumineux avec cuisine ouverte et terrasse exposée idéalement, Deux chambres avec placards, dont une avec balcon, une Salle de bains, un WC indépendant, Entrée spacieuse permettant un agencement optimisé, un Parking en sous-sol et une cave. Ce bien réunit de nombreux critères recherchés dans le secteur : faibles charges, excellent DPE, résidence récente, quartier calme et familial, proche commerces, écoles, transports vers Paris et La Défense.. Quartier Montreuil à Versailles : une adresse très demandée pour son confort de vie et sa qualité résidentielle. Opportunité rare à Versailles Montreuil. Contactez rapidement L'ADRESSE Chaville Viroflay pour organiser une visite. Copropriété de 175 lots - dont 58 lots habitation. Charges annuelles : 2208 euros. Année de construction : 2007 Numéro de mandat : 0229 Honoraires à la charge de : Vendeur Bien En copropriété : Oui Nombre de lots de la copropriété : 175 Montant moyen des Charges annuelles : 2208 euros Procédure sur le Syndicat des copropriétaires : NC Détail sur la procédure en cours : Pas de procédure en cours
Informations clés
- Prix 550 000 €
- Référence ParuVendu 14165048_2707
- Nombre de pièces 3 pièces
- Surface 75 m²
- Date DPE 22/09/2025
- Classe énergie C
- Indice d’émissions de gaz à effet de serre C
Diagnostic énergétique


Pour la nouvelle notation (DPE à partir de juillet 2021), c'est la plus mauvaise des deux performances (énergie, climat) qui est retenue.