Villeneuve-d’Ascq – Jean Jaurès : T4 traversant 85 m², 3 chambres, ascenseur, parking collectif (DPE C) Villeneuve-d'Ascq
Description
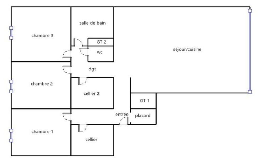
Cédric Fournie & Alexis Tanchis vous présente à la vente & en Exclusivité, cet appartement T4 de 85m², idéalement situé à Villeneuve-d'Ascq, secteur Jean Jaurès / Boulevard Albert 1er, à deux pas du métro, des commerces et des écoles. Dès l'entrée, vous retrouvez un hall avec rangements qui dessert une belle pièce de vie d'environ 35 m², composée d'un séjour convivial et d'une cuisine ouverte. L'appartement est traversant, offrant une luminosité agréable et une ventilation naturelle appréciable au quotidien. L'espace nuit propose 3 chambres confortables entre 10 et 12,5 m², ainsi que deux grands celliers attenants aux chambres, parfaits pour un usage dressing et/ou buanderie. La salle de douches est à rénover intégralement et les WC sont indépendants. L'appartement a bénéficié d'une rénovation partielle (notamment la pièce de vie), mais mérite globalement un rafraîchissement / une remise au goût du jour, avec un poste travaux à prévoir plus marqué sur la salle d'eau, à reprendre entièrement. Stationnement facilité grâce à un parking collectif libre au pied de la résidence. Côté technique, le logement bénéficie d'un DPE C. Chauffage, eau chaude et froide, syndic, etc inclus dans les charges. Un appartement bien placé, situé au 2ème étage avec ascenseur, avec une distribution efficace et du volume, idéal pour un projet de résidence principale ou d'investissement, avec travaux ciblés à prévoir (cuisine/salle d'eau notamment). Contactez-nous pour organiser unevisite! Nombre de lots de la copropriété: 129, Montant moyen de la quote-part annuelle de charges (budget prévisionnel) (Chauffage, Eau Chaude / Eau Froide, syndic, entretiens, etc) : 2775€ soit 231€ par mois. Les honoraires d'agence sont à la charge de l'acquéreur, soit 6,92% TTC du prix hors honoraires. Les informations sur les risques auxquels ce bien est exposé sont disponibles sur le site Géorisques : www. georisques. gouv. fr. Contactez Cedric FOURNIE Entrepreneur Individuel, Agent commercial OptimHome (RSAC N°945 255 008 Greffe de LILLE) (réf. 603637 ) Nom du négociateur : FOURNIE Cedric Prix net vendeur : 130000 euros Honoraires à la charge de l'Acquéreur : oui Bien En copropriété : oui Nombre de lots de la copropriété : 129 Montant moyen des Charges annuelles : 2775 euros Procédure sur le Syndicat des copropriétaires : non Statut du négociateur : agent commercial indépendant
Informations clés
- Prix 139 000 €
- Référence ParuVendu 830039474740
- Nombre de pièces 4 pièces
- Surface 85 m²
- Date DPE 10/03/2026
- Classe énergie C
- Indice d’émissions de gaz à effet de serre C
- Dépenses énergétiques Montant moyen : 1 315 €
Diagnostic énergétique


Pour la nouvelle notation (DPE à partir de juillet 2021), c'est la plus mauvaise des deux performances (énergie, climat) qui est retenue.