Nanterre Ville - Profession libérale - Local/Bureau 2 pièces sur jardin Nanterre Ville Nanterre
Description
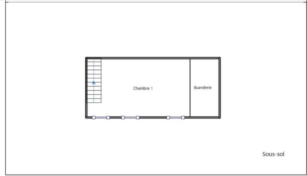
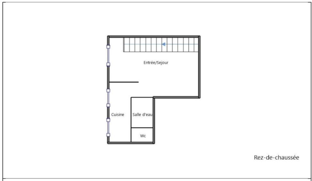
À 5 MINUTES A PIED DU RER A NANTERE-VILLE PROFESSIONS LIBERALES ADMISES - Venez découvrir ce local/bureau de 2 pièces d'une superficie de 52,30 m² loi Carrez et 56,34m² surface au sol, situé en rez-de-chaussée au sein d'une copropriété SECURISEE et entretenue. DUPLEX sur 2 niveaux. Au rez-de-chaussée, sur 25 m² au total, vous trouverez une entrée, une pièce principale très LUMINEUSE donnant sur JARDIN et sans vis-à-vis, une cuisine équipée, une salle d'eau et des wc séparés. En souplex, sur 27 m² au total, une pièce principale de 22,50 m² vous accueillera prolongée d'un espace de stockage ou rangements de 5 m². Il bénéficie d'une belle luminosité grâce à son exposition Sud-Est et sa VUE DÉGAGÉE sur jardin arboré et est en TRES BON ETAT. Chauffage et eau chaude individuels électriques (50€/mois). Double vitrage. PAS DE TRAVAUX à prévoir et aucune anomalie électrique. Les +++ - A proximité du centre-ville de Nanterre (RER A) et des commerces - Lumineux, sur jardin arboré et sans vis-à-vis - Pas de travaux à prévoir - Idéal toutes professions libérales. A visiter sans tarder ! Nombre de lots de la copropriété : 61, Montant moyen annuel de la quote-part de charges (budget prévisionnel) : 1280€ soit 106€ par mois. Les honoraires sont à la charge du vendeur. Les informations sur les risques auxquels ce bien est exposé sont disponibles sur le site Géorisques : www. georisques. gouv. fr. Réseau Immobilier CAPIFRANCE - Votre agent commercial (RSAC N°835 035 908 - Greffe de PARIS 4EME ARRONDISSEMENT) François LERAT Entrepreneur Individuel - Réf.931640 Nom du négociateur : LERAT François Honoraires à la charge du Vendeur Bien En copropriété : oui Nombre de lots de la copropriété : 61 Montant moyen des Charges annuelles : 1281 euros Procédure sur le Syndicat des copropriétaires : non Statut du négociateur : agent commercial indépendant
Informations clés
- Prix 249 000 €
- Référence ParuVendu 340932280061
- Nombre de pièces 2 pièces
- Surface 53 m²
- Date DPE 17/09/2025
- Classe énergie E
- Indice d’émissions de gaz à effet de serre B
- Dépenses énergétiques Montant moyen : 1 485 €
Diagnostic énergétique


Pour la nouvelle notation (DPE à partir de juillet 2021), c'est la plus mauvaise des deux performances (énergie, climat) qui est retenue.