Vente / Bureau Paris 12

PreviousNext

Description

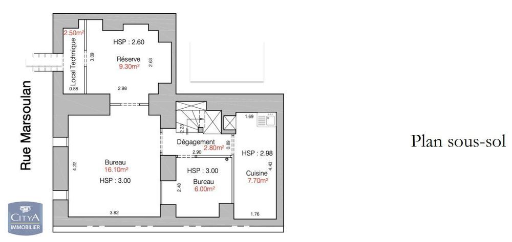
PARIS XIIe - Cours de Vincennes : local professionnel de 129,70 m² à vendre, idéal pour bureau ou profession libérale. - PARIS XIIe - Cours de Vincennes : CITYA Modern'Imm vous propose à la vente un local professionnel idéalement situé à proximité de la station Nation dans le quartier Bel Air Nord. Ce bien, d'une superficie totale de 129,70 m², est parfaitement adapté pour un usage de bureau ou pour des professions libérales. Le local se compose de deux niveaux distincts. Au rez-de-chaussée, vous trouverez un espace de 85,4 m², offrant une belle luminosité et une configuration fonctionnelle pour accueillir vos activités professionnelles. Ce niveau est idéal pour recevoir des clients ou organiser des réunions, grâce à sa disposition qui favorise la circulation et l'aménagement d'espaces de travail. En complément, le sous-sol de 44,4 m² permet d'optimiser l'espace disponible. Ce niveau peut être utilisé pour le stockage, des bureaux supplémentaires ou des salles de réunion, selon vos besoins. Bien que le local ne soit pas meublé, cela vous offre la liberté de l'aménager selon vos goûts et vos exigences professionnelles. Il est à noter que ce bien ne dispose pas de sous-sol ni d'ascenseur, ce qui en fait un espace à usage exclusif pour des activités de bureau. Sa localisation stratégique dans un quartier dynamique de Paris en fait un choix judicieux pour toute entreprise souhaitant s'établir dans un environnement professionnel stimulant. N'attendez plus pour découvrir ce local qui saura répondre à vos attentes et à celles de votre activité. Honoraires à la charge du vendeur. Vous pouvez consulter les barèmes d'honoraires à l'adresse suivante : Les informations sur les risques auxquels ce bien est exposé sont disponibles sur le site Géorisques : https://www.georisques.gouv.fr

Informations clés

  • Prix 1 100 000 €
  • Référence ParuVendu TLOC104826
  • Surface 0 m²
  • Date DPE 01/01/1970
  • Classe énergie  NC
  • Indice d’émissions de gaz à effet de serre  NC