Local professionnel 110 m2, avenue Victor Hugo, 26000 VALENCE Valence
Description
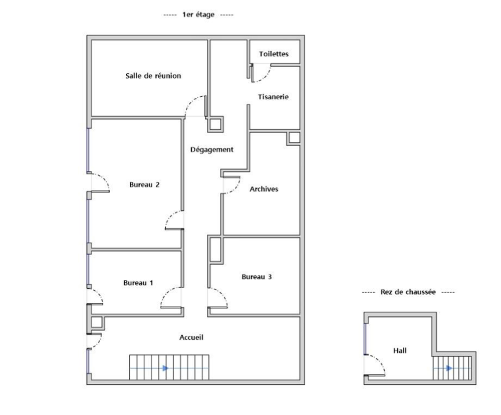
A vendre, VALENCE (26000), dans l’avenue Victor Hugo prisée des valentinois, au sein de la copropriété LES ALLEES HUGO, local professionnel de 110,8 m2 avec accès indépendant de la rue composé d’un hall d’entrée, d’un escalier donnant accès à un espace attente et détente lumineux, 3 bureaux chaleureux et modulables, une salle de réunion, des sanitaires et une salle d’archives. Les espaces sont fonctionnels, soignés et adaptés à un usage immédiat, avec sols en parquet et carrelage, menuiseries double vitrage, le chauffage et la climatisation sont fournis par une pompe à chaleur air/air. Stationnement libre dans la copropriété et facile dans la rue. Son implantation dans une rue à forte fréquentation est idéale pour l’exercice d’une activité libérale ou professionnelle ne recevant pas de public (Pas d’accès PMR). Montant estimé des dépenses annuelles d'énergie pour un usage standard : 1038€. Les informations sur les risques auxquels ce bien est exposé sont disponibles sur le site Géorisques : www.georisques.gouv.fr . Ces bureaux vous sont proposés à la vente en exclusivité par l'agence DE MAISON PIERRE. Détails : Nombre de pièces : 5 Mode de chauffage : AIR PULSE Type de chauffage : POMPE A CHALEUR Format de chauffage : INDIVIDUEL Honoraires à charge du Vendeur Bien En copropriété : Oui Nombre de lots de la copropriété : 168 Montant moyen des Charges annuelles : 1008.18 euros Procédure sur le Syndicat des copropriétaires : NOTPROCESS Détail sur la procédure en cours : non Taxe foncière : 2510 euros
Informations clés
- Prix 177 000 €
- Référence ParuVendu 10282-29459
- Nombre de pièces 5 pièces
- Surface 111 m²
- Date DPE 13/01/2026
- Classe énergie B
- Indice d’émissions de gaz à effet de serre A
- Dépenses énergétiques Montant moyen pour 2025 : 1 038 €
Diagnostic énergétique


Pour la nouvelle notation (DPE à partir de juillet 2021), c'est la plus mauvaise des deux performances (énergie, climat) qui est retenue.