Vente Boutique/Local commercial 123 m² Brie-Comte-Robert

PreviousNext

Description

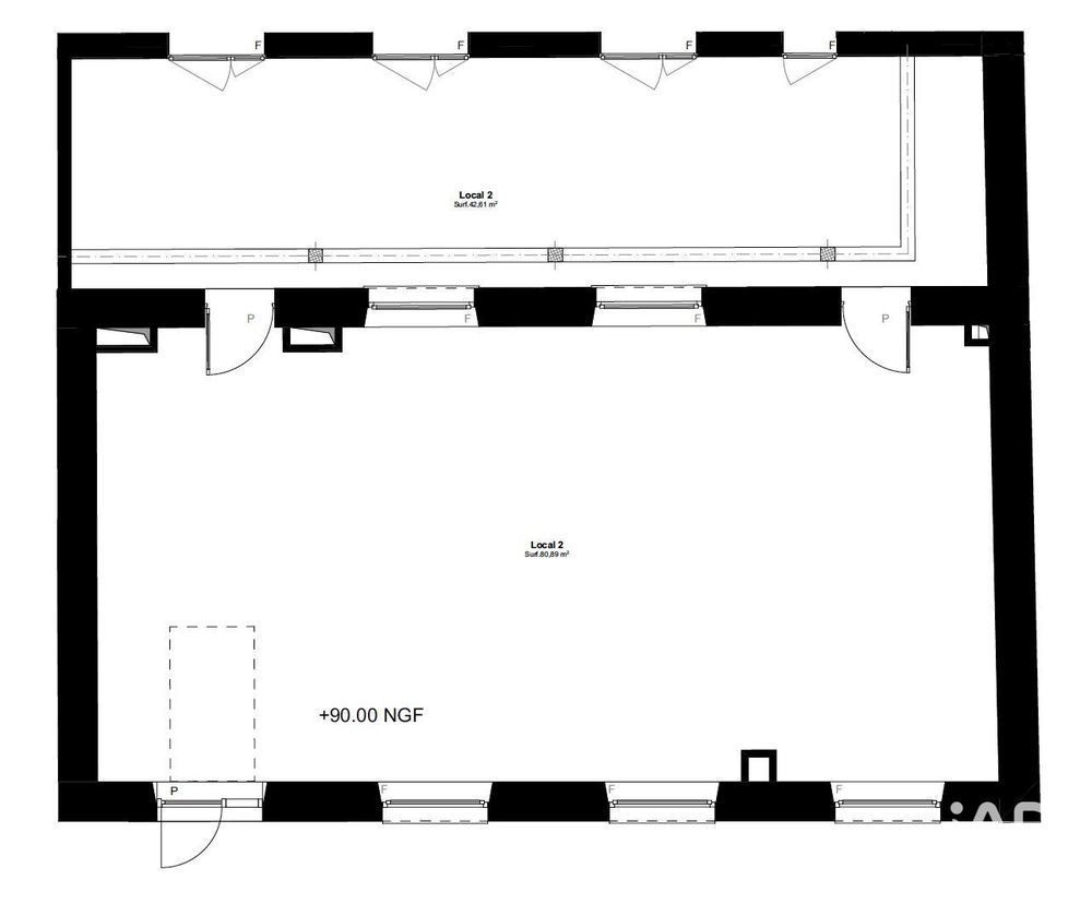
iad France - Guillaume Combe (ou ) vous propose : Local d'activité situé au rez-de-chaussée d'un très bel immeuble du centre-ville, d'une superficie de 123m2 environ, ce local est idéal pour des activités de bureaux (Notaire, Cabinet comptable, Agent d'assurance, services à la personne) ainsi que pour des activités médicales (Maison médical, cabinet dentaire, médecin, kinésithérapeute, paramédical...). Les activités de restaurations alimentaire y sont en revanche proscrites. > Programme neuf en VEFA, livraison 2ème trimestre 2026 > Frais de notaire réduits. > Livré brut de béton. Aménagements intérieur à charge du preneur. > TVA incluse de 20% déductible. > 2 places de parkings complètes également ce lot. Possibilité d'acquérir le local voisin du lot d'une superficie de 66m2 environ. Photos non contractuelles. Pour de plus amples informations, n'hésitez pas à me contacter. Information d'affichage énergétique sur le bien associé à cette annonce : DPE NS indice 0 et GES NS indice 0. La présente annonce immobilière a été rédigée sous la responsabilité éditoriale de M. Guillaume Combe (ID 12677), Agent Commercial mandataire en immobilier immatriculé au Registre Spécial des Agents Commerciaux (RSAC) du Tribunal de Commerce de Melun sous le numéro 804 776 920 Retrouvez tous nos biens sur notre site internet. www.iadfrance.fr CC HT Numéro de mandat : 1888883 Honoraires à la charge du Vendeur Bien En copropriété : NON

Informations clés

  • Prix 389 000 €
  • Référence ParuVendu 1888883
  • Surface 123 m²
  • Date DPE 01/01/1970
  • Classe énergie  NC
  • Indice d’émissions de gaz à effet de serre  NC