IMMEUBLE pour commerce et/ou habitation + cour Descartes
Description
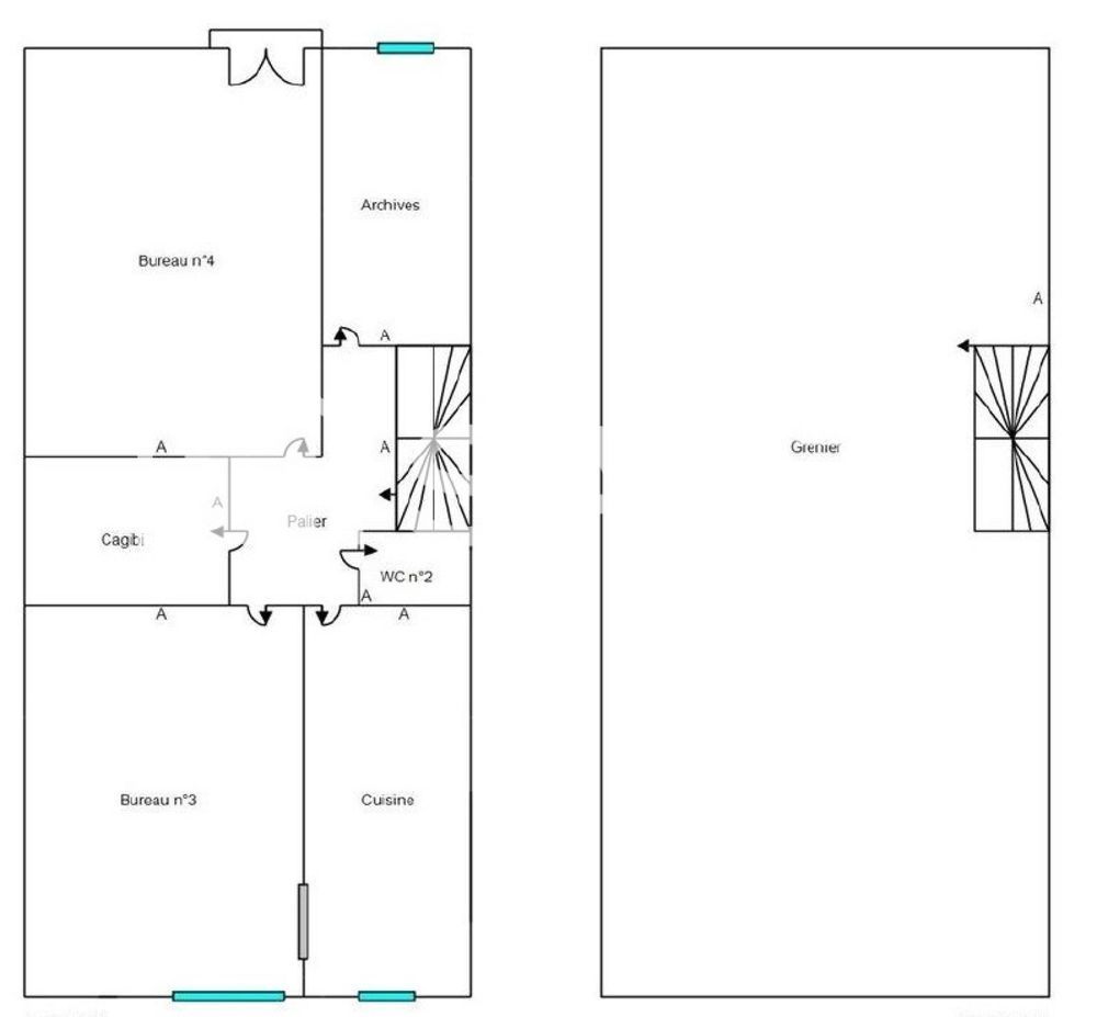
Au coeur de DESCARTES, en rue commerçante, découvrez ce bel ensemble immobilier libre de COPROPRIETE et libre de FOND DE COMMERCE ! Sur 120m² (rdc + 1er étage) sans compter le grenier aménageable de 35m², vous pourrez directement louer à un nouveau commerçant ou entamer des travaux de rénovation. Cour sécurisée et cave voûtée. Tout à l'égôut et fibre optique. 2 abonnements électriques. Chauffage central gaz de ville. Parking gratuit communal à deux pas. Pas de risques : renseignez vous vite ! Les informations sur les risques auxquels ce bien est exposé sont disponibles sur le site Géorisques : www.georisques.gouv.fr Prix de vente honoraires d’agence inclus : 55 000 € HT + 1 100 € TVA, soit 56 100 € TTC Prix de vente hors honoraires d’agence : 49 500 € HT + 0 € TVA, soit 49 500 € TTC Honoraires d'agence : 5 500 € HT + 1 100 € TVA, soit 6 600 € TTC (13.33 % TTC du prix de vente hors honoraires d'agence) Honoraires charge acquéreur Contactez votre conseiller SAFTI : Romain MORVAN - EI - Agent commercial immatriculé au RSAC de TOURS sous le numéro 514 836 238 Surface terrain : 108 m². Honoraires à la charge de l'acquéreur Pourcentage des Honoraires à la charge de l'Acquéreur : 11.11 % Bien En copropriété : NON
Informations clés
- Prix 55 000 €
- Référence ParuVendu 1487547_3610
- Nombre de pièces 5 pièces
- Surface 120 m²
- Date DPE 28/10/2022
- Classe énergie E
- Indice d’émissions de gaz à effet de serre D
Diagnostic énergétique


Pour la nouvelle notation (DPE à partir de juillet 2021), c'est la plus mauvaise des deux performances (énergie, climat) qui est retenue.