A vendre, Local commercial avec Cave, Le Cannet 06110, Alpes Maritimes Le Cannet

PreviousNext

Description

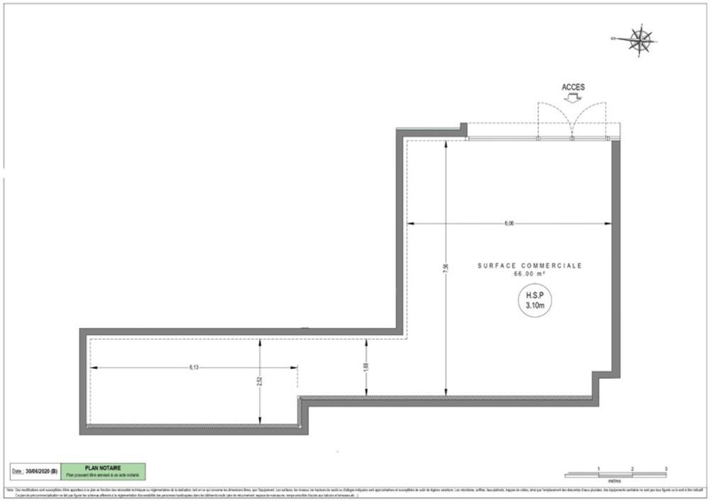
A VENDRE - Immeuble neuf livré, Le Cannet - Boulevard Carnot, Local commercial de 66 m², brut, fluides en attente, Belle vitrine, hauteur sous plafond 3m10, Cave, Possibilité d'acquérir en sus, Garage "commandé" (2 places), Nombre de lots de la copropriété : 188, Montant moyen annuel de la quote-part de charges (budget prévisionnel)(Estimation) : 1080€ soit 90€ par mois. Les honoraires sont à la charge du vendeur. Les informations sur les risques auxquels ce bien est exposé sont disponibles sur le site Géorisques : www. georisques. gouv. fr. Réseau Immobilier CAPIFRANCE - Votre agent commercial (RSAC N°524 641 636 - Greffe de NICE) Christian ARIONE Entrepreneur Individuel - Réf.923733 Nom du négociateur : ARIONE Christian Honoraires à la charge du Vendeur Bien En copropriété : oui Nombre de lots de la copropriété : 188 Montant moyen des Charges annuelles : 1080 euros Procédure sur le Syndicat des copropriétaires : non Statut du négociateur : agent commercial indépendant

Informations clés

  • Prix 210 000 €
  • Référence ParuVendu 340932680724
  • Nombre de pièces 1 pièce
  • Surface 66 m²
  • Date DPE 01/01/1970
  • Classe énergie  NC
  • Indice d’émissions de gaz à effet de serre  NC