Vente Boutique/Local commercial 199 m² Marseille 13

PreviousNext

Description

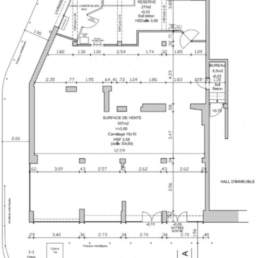
iad France - Julie Garnier () vous propose : Situé rue Alphonse Daudet, dans le 13eme arrondissement de Marseille, local commercial de 199 m² environ vendu nu, et offrant la possibilité d'un projet sur mesure. Situé dans une rue résidentielle mêlant commerce et bureaux, il bénéficie d’une excellente visibilité grâce à sa position à l'angle de 2 rues et face à un bureau de poste. Le bien dispose d’une surface de vente de 153 m² environ, d’une réserve de 41 m² environ, ainsi que d’un lavabo & WC. Les volumes et la configuration permettent de multiples aménagements. Deux caves en sous-sols viennent compléter le bien. Ce local convient à une activité commerciale, artisanale ou de services, sous réserve des autorisations d’usage. Charges de copropriété : env. 350 € / mois. Un bien à fort potentiel, situé dans une zone à fort passage, à moins de 10 minutes à pied des stations de métro Saint-Just (Le Dôme / Conseil Départemental) et Malpassé. Idéal pour investisseurs ou professionnels souhaitant implanter leur activité. Information d'affichage énergétique sur le bien associé à cette annonce : DPE NS indice 0 et GES NS indice 0. La présente annonce immobilière a été rédigée sous la responsabilité éditoriale de Mlle Julie Garnier (ID 90190), Agent Commercial mandataire en immobilier immatriculé au Registre Spécial des Agents Commerciaux (RSAC) du Tribunal de Commerce de AIX-EN-PROVENCE sous le numéro 853977197 Retrouvez tous nos biens sur notre site internet. www.iadfrance.fr CC HT Numéro de mandat : 1932482 Honoraires à la charge du Vendeur Bien En copropriété : NON

Informations clés

  • Prix 292 500 €
  • Référence ParuVendu 1932482
  • Surface 199 m²
  • Date DPE 01/01/1970
  • Classe énergie  NC
  • Indice d’émissions de gaz à effet de serre  NC