PARIS 75009 - LOCAL COMMERCIAL - IDEAL INVESTISSEUR Paris 9

PreviousNext

Description

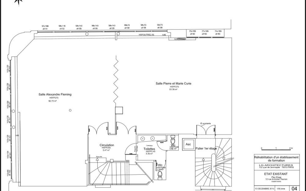
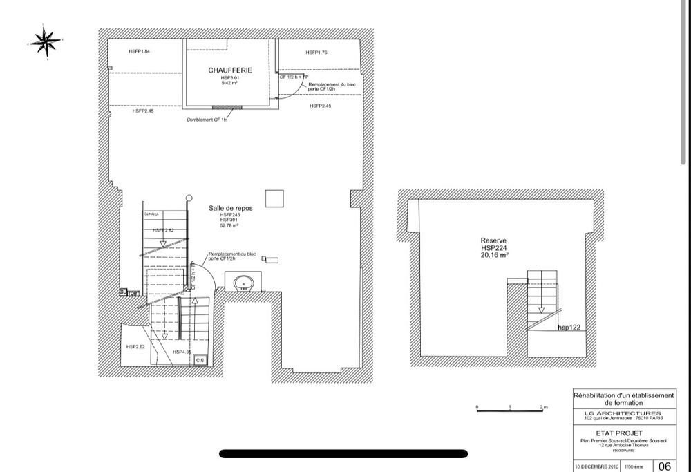
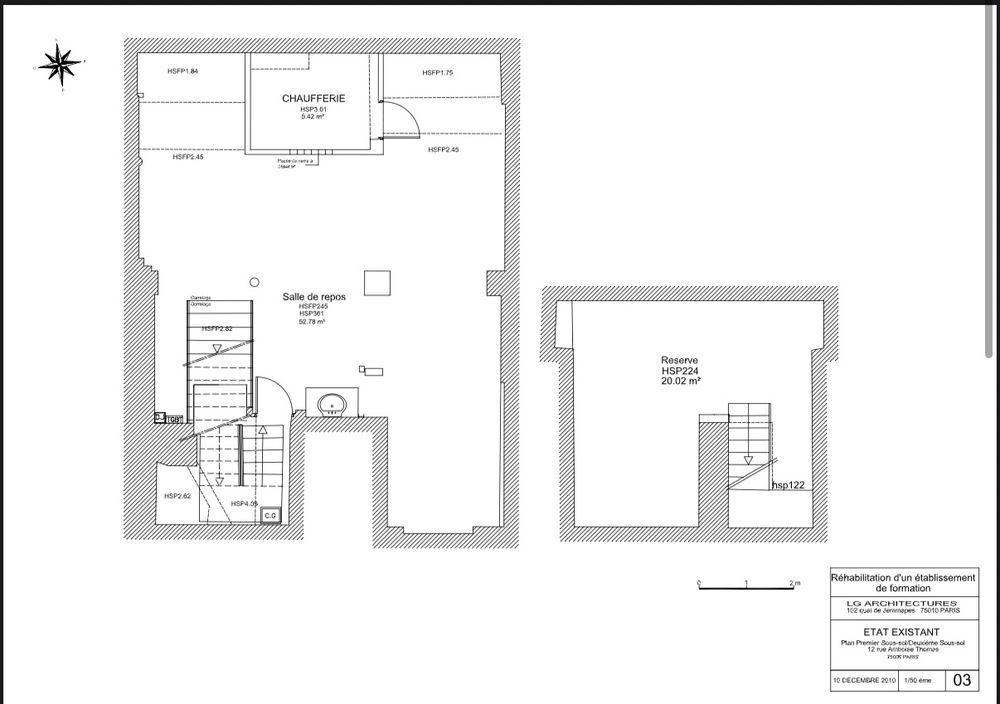
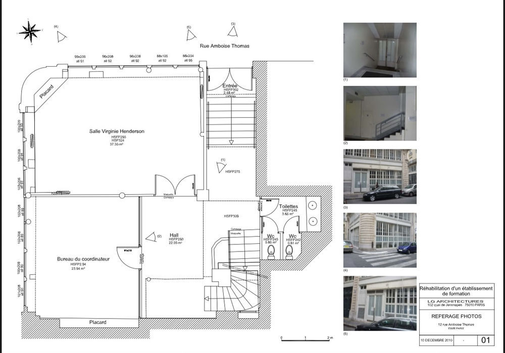
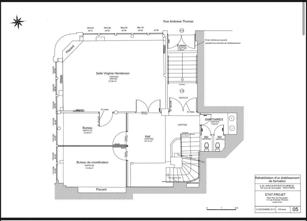
Local commercial ou bureaux Surface 299 m2 Ezra Home Immobilier vous présente une opportunité rare à Paris, idéalement située au rue Ambroise Thomas, au cœur du 9e arrondissement et à proximité immédiate des Grands Boulevards et du quartier de l Opéra. Ce secteur, reconnu pour son dynamisme économique, attire chaque année de nombreuses entreprises françaises et internationales, ce qui en fait une adresse stratégique pour un investissement professionnel. Le local bénéficie d une architecture en angle et de très beaux volumes. Les larges façades vitrées offrent une luminosité exceptionnelle, parfaitement visible sur les plans du rez de chaussée et de l étage qui montrent de vastes espaces ouverts adaptés à des usages multiples . Ce bien se prête aussi bien à l implantation de bureaux qu à l exploitation d une activité commerciale hors restauration selon le règlement de copropriété. Plusieurs configurations sont possibles grâce aux plateaux modulables et aux hauteurs sous plafond appréciables. Caractéristiques détaillées Surface totale 299 m2 Rez de chaussée surélevé 93 m2 lumineux et traversant Premier étage 127 m2 avec deux grandes salles et une circulation centrale très efficace Sous sol 78 m2 avec salle de repos, local technique et chaufferie Atouts pour investisseurs Emplacement premium dans un secteur à forte demande locative Adresse recherchée du 9e arrondissement entre Opéra et Grands Boulevards Très forte visibilité grâce aux façades vitrées en angle Volumes rares permettant plusieurs stratégies d occupation Possibilité de division ou d exploitation en bureaux haut de gamme Loyer potentiel élevé en fonction du type d activité installée Local sans travaux lourds, immédiatement exploitable Bien En copropriété : Oui Nombre de lots de la copropriété : 32 Détail sur la procédure en cours : non Taxe foncière : 0 euros

Informations clés

  • Prix 2 600 000 €
  • Référence ParuVendu 255-868
  • Surface 291 m²
  • Date DPE 01/01/1970
  • Classe énergie  NC
  • Indice d’émissions de gaz à effet de serre  NC