Boutique d'angle, à vendre dans un bel immeuble d'angle Haussmannien Paris 13
Slide 1 of 9 
Slide 2 of 9 
Slide 3 of 9 
Slide 4 of 9 
Slide 5 of 9 
Slide 6 of 9 
Slide 7 of 9 
Slide 8 of 9 
Slide 9 of 9 
Description
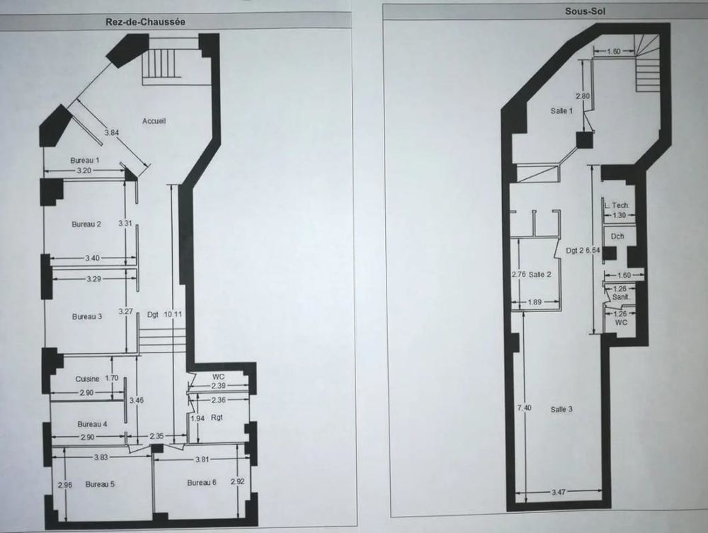
M° Saint Marcel, dans un immeuble pierre de taille de standing, à vendre murs de boutique d'angle, à la lisière du 5e arrondissement. Idéal investisseurs (rentabilité brut potentielle: 7%) CARACTERISTIQUES DE L'OFFRE Rez-de-chaussée (103 m² au sol, 100m² carrez) Une entrée / acceuil 5 pièces au rdc dont 1 cloisonnée vitrée 1 sanitaire avec lave mains Un espace cuisine Au sous sol (71m² pondéré à 0,3 = 21²) 1 grande pièce / espace ouvert 2 pièces Un local technique Un sanitaire avec lave mains CONDITIONS FINANCIERES Prix Net Vendeur : 940 000,00 € Honoraire en sus à la charge de l'acquereur : 5% HT Disponibilité : Immédiate
Informations clés
- Prix 940 000 €
- Référence ParuVendu 10320820
- Surface 121 m²
- Date DPE 01/01/1970
- Classe énergie NC
- Indice d’émissions de gaz à effet de serre NC