Maison - 4 pièce(s) - 104 m² Ablis

PreviousNext

Description

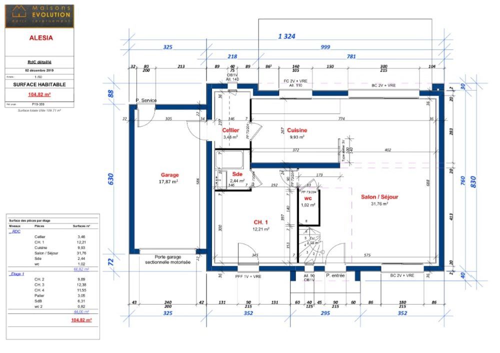
Un mixte parfait entre classique et contemporain. Le modèle ALESIA offre un design original avec son toit 2 pans, ses grandes lucarnes et sa verrière centrale qui apportent une belle luminosité dans toute la maison. La façade arrière, plus sobre s'ouvre généreusement sur la terrasse et les espaces verts. ALESIA propose 104m² habitables (hors garage accolé) à aménager selon ses envies avec : au RDC une pièce à vivre de 41m², idéale pour se retrouver en famille ou entre amis et une suite parentale. Et à l'étage baigné de lumière grâce à la verrière, 3 chambres séparées qui permettent à chacun de disposer de son espace personnel. Le modèle d'inspiration ALESIA est totalement adaptable à vos envies et besoins. Nous consulter.06/04/65/51/79 MAISONS EVOLUTION Annonce proposée par un Agent Commercial Partenaire. Nos offres de terrains sont proposées en collaboration avec nos partenaires fonciers pour des maisons dans le cadre de la loi du 10/12/1990, selon disponibilité. Surface habitable : 104m2. Nombre de pièces : 4. Nombre de chambres : 3. Prix terrain seul : 79500 euros. Terrain proposé par un partenaire foncier selon disponibilités et autorisation de publicité au prix de 79 500 €. Hors droit d'enregistrement et frais de notaire. Maison proposée, avec un contrat de construction de maison individuelle, dans le cadre de la loi du 19/12/1990, au prix de 205 500 € (Hors branchements et raccordements, papiers peints, peintures, revêtement de sol dans les chambres, qui sont chiffrés dans les travaux qui restent à charge du client. Tarif modifiable sans préavis). Étiquette énergie : A. Différents modèles disponibles pour ce terrain. Assurances et garanties du constructeur comprises (RC professionnelle, décennale, dommage ouvrage). MAISONS EVOLUTION Domexpo Ouest 78310 Coignières Référence : JCL2372517_1-0 Bien En copropriété : non

Informations clés

  • Prix 285 000 €
  • Référence ParuVendu 1118447_1005141_3607841
  • Nombre de pièces 4 pièces
  • Surface 104 m²
  • Date DPE 01/01/1970
  • Classe énergie  A
  • Indice d’émissions de gaz à effet de serre  NC