Maison - 4 pièce(s) - 85 m² Ansouis

PreviousNext

Description

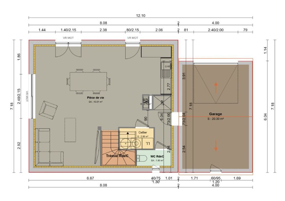
Maison en R+1 d'environ 86m² composée en étage de 3 chambres, d'une vaste salle de bain, et en rez-de-chaussée bénéficie d'un cellier cuisine ouverte sur grand séjour et d'un wc indépendant. Cette maison est présentée avec un garage accolée d'environ 20m². Pour tout renseignement veuillez vous rapprocher de Gilles VAN CUTSEM de Maisons France Confort Annonce proposée par un Agent Commercial Partenaire. Nos offres de terrains sont proposées en collaboration avec nos partenaires fonciers pour des maisons dans le cadre de la loi du 10/12/1990, selon disponibilité. Surface habitable : 85m2. Nombre de pièces : 4. Nombre de chambres : 3. Prix terrain seul : 204000 euros. Terrain proposé par un partenaire foncier selon disponibilités et autorisation de publicité au prix de 204 000 €. Hors droit d'enregistrement et frais de notaire. Terrain + Maison proposés au prix de 180 020 € (Hors branchements et raccordements, papiers peints, peintures, revêtement de sol dans les chambres. Tarif modifiable sans préavis). Etiquette énergie : A. Différents modèles disponibles pour ce terrain. Assurances et garanties du constructeur (RC professionnelle, décennale, dommage ouvrage, garantie de remboursement de l'acompte, livraison à prix et délai convenu) : HEXAOM Services est enregistré auprès de l'ORIAS en tant que Courtier en financement, Niveau 1, sous le numéro 14001345. MAISONS FRANCE CONFORT 1330 rue G. Gauthier de la Lauziere 13290 Aix-en-Provence Référence : GVC2401234_3 Bien En copropriété : non

Informations clés

  • Prix 384 020 €
  • Référence ParuVendu 1020746_1005119_3637641
  • Nombre de pièces 4 pièces
  • Surface 85 m²
  • Date DPE 01/01/1970
  • Classe énergie  A
  • Indice d’émissions de gaz à effet de serre  NC