Vente Maison de ville 4 pièces Argenteuil
Description
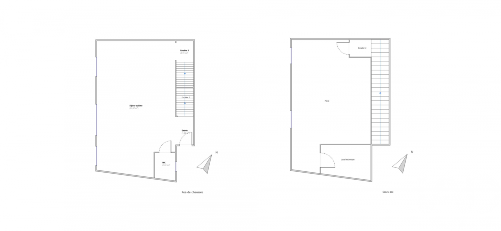
iad France - Wilfried Bonnaire vous propose: Maison de ville rénovée de 83 m² environ avec terrasse plein sud à Argenteuil -Quartier Orgemont. Présentation générale Située dans le quartier résidentiel et recherché d’Orgemont à Argenteuil, cette maison de ville rénovée offre environ 83 m² habitables (100 m² au sol) répartis sur quatre niveaux, dont un sous-sol aménagé. Construite en 1981 et entièrement remise au goût du jour, elle séduit par sa luminosité, son fonctionnement moderne et son agencement optimisé, le tout dans un secteur calme et pratique à vivre. Emplacement et cadre de vie Le quartier Orgemont combine sérénité résidentielle et facilité d’accès. L’autoroute A15 est accessible en 2 minutes, permettant de rejoindre rapidement Paris et les communes voisines. Les lignes de bus passent à proximité immédiate et la gare d’Argenteuil centre se situe à environ 15 à 20 minutes à pied. Commerces de proximité, écoles et espaces verts complètent un cadre de vie équilibré et agréable, idéal pour une vie de famille ou un premier achat. Distribution & agencement La maison se compose comme suit : •Rez-de-chaussée : entrée, séjour lumineux exposé plein sud, cuisine ouverte aménagée et équipée, WC indépendant. •1er étage : une chambre, salle d’eau avec douche, et une pièce polyvalente pouvant servir de bureau ou de chambre d’appoint. •Dernier étage : suite parentale avec espace nuit, baignoire, lavabo et WC. •Sous-sol complet : buanderie et pièce aménageable (atelier, salle de jeux, stockage ou bureau). L’ensemble bénéficie d’une bonne hauteur sous plafond, d’une exposition optimale et de nombreux rangements fonctionnels. Extérieurs et confort À l’extérieur, une terrasse plein sud permet de profiter pleinement des beaux jours, en toute intimité. Le stationnement est facile, directement devant la maison. Les prestations récentes assurent un excellent confort de vie : •Double vitrage et isolation performante •Aucun travaux à prévoir •Sous-sol complet offrant un volume exploitable supplémentaire À qui s’adresse ce bien ? Cette maison de ville rénovée à Argenteuil conviendra parfaitement à un jeune couple, une petite famille, ou un investisseur à la recherche d’un bien clé en main. Une visite vous permettra d’en apprécier pleinement les volumes, la clarté et la qualité de la rénovation. N’hésitez pas à me contacter pour obtenir plus d’informations ou convenir d’une visite. Honoraires d'agence à la charge du vendeur. Information d'affichage énergétique sur ce bien : classe ENERGIE D indice 246 et classe CLIMAT B indice 8. Les informations sur les risques auxquels ce bien est exposé, y compris l'obligation légale de débroussaillement, sont disponibles sur le site Géorisques : La présente annonce immobilière a été rédigée sous la responsabilité éditoriale de M Wilfried Bonnaire mandataire indépendant en immobilier (sans détention de fonds), agent commercial de la SAS I@D France immatriculé au RSAC de NANTERRE sous le numéro 903630580, titulaire de la carte de démarchage immobilier pour le compte de la société I@D France SAS. CC HT Numéro de mandat : 1878889 Honoraires à la charge du Vendeur Bien En copropriété : NON
Informations clés
- Prix 305 000 €
- Référence ParuVendu 1878889
- Nombre de pièces 4 pièces
- Surface 83 m²
- Date DPE 02/08/2024
- Classe énergie D
- Indice d’émissions de gaz à effet de serre B
- Dépenses énergétiques Montant moyen pour 2023 : 1 870 €
Diagnostic énergétique


Pour la nouvelle notation (DPE à partir de juillet 2021), c'est la plus mauvaise des deux performances (énergie, climat) qui est retenue.