Maison - 3 pièce(s) - 95 m² Beauziac

PreviousNext

Description

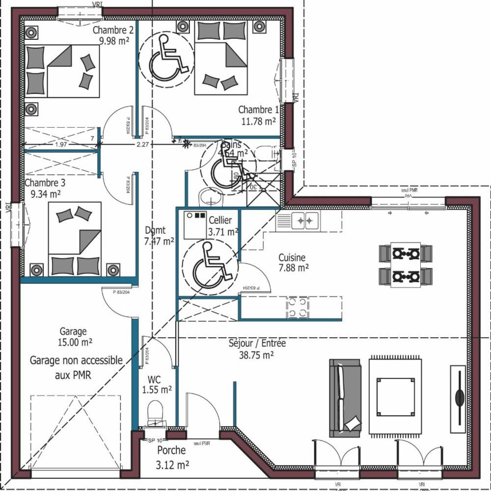
Maison F3 (95 m²) en vente à Beauziac À découvrir à Beauziac (47700) : maison neuve 3 pièces à vendre. Surface de 95 m² et 1 080 m² de terrain. Conçue de plain-pied, elle compte trois chambres, une cuisine et une salle de bains. À dix minutes : établissements scolaires, tennis, bibliothèque, bassins de natation, commerces, boulangeries, supermarché, poissonnerie et bureau de poste. Cette maison de 3 pièces est à vendre pour la somme de 220 000 €. Nos offres de terrains sont proposées en collaboration avec nos partenaires fonciers pour des maisons dans le cadre de la loi du 10/12/1990, selon disponibilité. Surface habitable : 95m2. Nombre de pièces : 3. Nombre de chambres : 3. Prix terrain seul : 37900 euros. Idée de réalisation en modèle prêt à décorer sur l'un de nos terrains partenaires, sous réserve de disponibilités. Voir détails en agence. Maisons MCA - Marmande Route de Bordeaux 47200 Marmande Référence : AF2439334_2 Bien En copropriété : non

Informations clés

  • Prix 220 000 €
  • Référence ParuVendu 1037071_1005134_3676516
  • Nombre de pièces 3 pièces
  • Surface 95 m²
  • Date DPE 01/01/1970
  • Classe énergie  A
  • Indice d’émissions de gaz à effet de serre  NC