Maison - 5 pièce(s) - 120 m² Bénaix

PreviousNext

Description

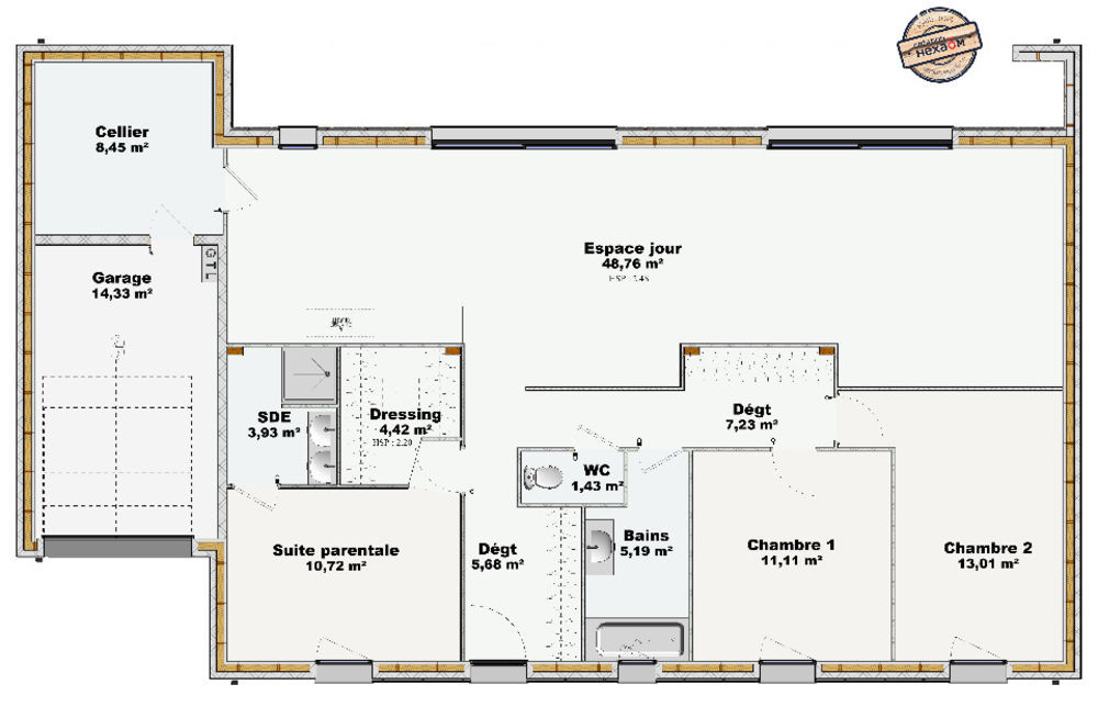
Vous êtes sensible à l'environnement ? Avec Maisons France Confort Pamiers, optez maintenant pour la maison à ossature bois et participez à la réduction de l'empreinte carbone pour préserver notre planète. Cette maison conjugue confort moderne, réduction des délais de construction et respect de l'environnement. Elle vous est proposée pour 361 307 € Hors frais, sur un terrain de 3 002 m ² dans la commune de Benaix. Vous allez apprécier la ligne épurée et la façade abritée par un auvent de cette maison environnementale. Elle contribue à un avenir plus vert et vous assure une construction éco-performante avec une empreinte carbone basse. Elle se compose, pour la partie jour de 50 m2, d'un espace de vie très lumineux avec deux grandes baies vitrées, une cuisine ouverte et d'un garage de 15m2 accolé au grand cellier. L'entrée sépare les deux espaces de nuit, un pour les parents avec cette belle suite parentale avec dressing et salle d'eau de 19 m2 et pour les enfants ou les amis 2 chambres, une salle de bains et un WC séparé. Pour rendre votre projet unique, il est personnalisable : les plans, le niveau de prestations, les menuiseries...vous décidez suivant vos envies et votre budget. Maisons France Confort vous offre dans votre contrat de construction de maison individuelle toutes les garanties. Faites maintenant le choix du 1er constructeur en Midi Pyrénées pour un accompagnement de haute qualité à toutes les étapes de votre projet pour une construction durable. Alors pour toutes informations, étude personnalisée et gratuite de votre projet, c'est facile contactez l'agence Maisons France Confort de Pamiers Annonce proposée par un Agent Commercial Partenaire. Nos offres de terrains sont proposées en collaboration avec nos partenaires fonciers pour des maisons dans le cadre de la loi du 10/12/1990, selon disponibilité. Surface habitable : 120m2. Nombre de pièces : 5. Nombre de chambres : 3. Prix terrain seul : 49500 euros. Terrain proposé par un partenaire foncier selon disponibilités et autorisation de publicité au prix de 49 500 €. Hors droit d'enregistrement et frais de notaire. Maison proposée, avec un contrat de construction de maison individuelle, dans le cadre de la loi du 19/12/1990, au prix de 311 807 € (Hors branchements et raccordements, papiers peints, peintures, revêtement de sol dans les chambres, qui sont chiffrés dans les travaux qui restent à charge du client. Tarif modifiable sans préavis). Étiquette énergie : A. Différents modèles disponibles pour ce terrain. Assurances et garanties du constructeur comprises (RC professionnelle, décennale, dommage ouvrage). MAISONS FRANCE CONFORT 4 route de Foix 09100 Pamiers Référence : FA2217903_5 Bien En copropriété : non

Informations clés

  • Prix 361 307 €
  • Référence ParuVendu 1005205_1005119_3451112
  • Nombre de pièces 5 pièces
  • Surface 120 m²
  • Date DPE 01/01/1970
  • Classe énergie  A
  • Indice d’émissions de gaz à effet de serre  NC