Maison neuve, Idéalement située à Casteljaloux Casteljaloux
Description
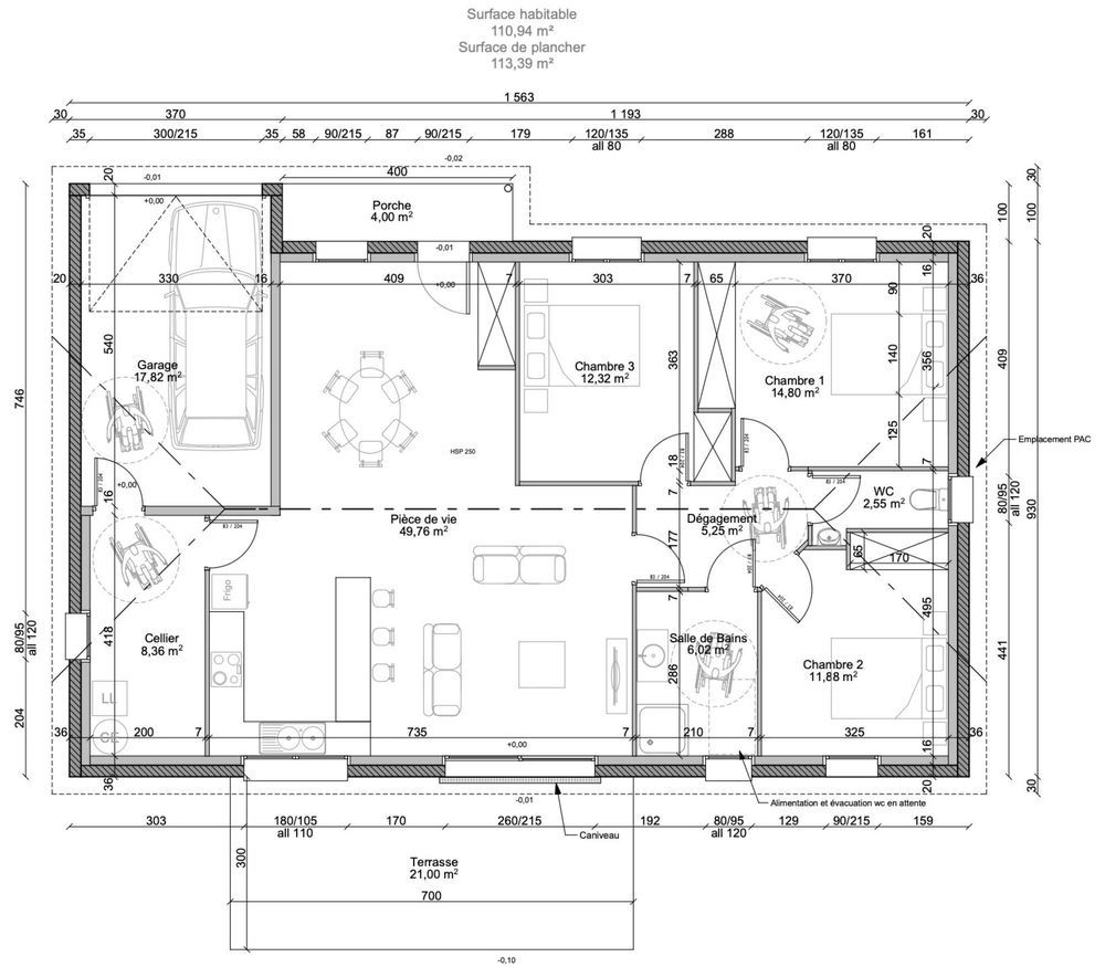
Maison neuve aux dernières normes RE2020 construite, de 110 m². Située dans un quartier calme à seulement 400 mètres à pied du Leclerc. Caractéristiques : Espace de vie spacieux : séjour lumineux de 49 m² avec cuisine ouverte 3 chambres Salle de bain moderne : douche italienne + double vasque et sèche serviette et wc WC séparé avec lavabo Terrasse de 21 m² pour profiter des beaux jours Terrain de 735 m² entièrement clôturé Garage avec portail électrique + 1 place de parking extérieure Clim réversible dans la pièce à vivre et côté nuit, chauffe eau thermodynamique Assurance dommage ouvrage, garantie décennale, frais de notaire réduits DPE : A Les informations sur les risques auxquels ce bien est exposé sont disponibles sur le site Géorisques : www.georisques.gouv.fr Prix de vente : 291 200 € Honoraires charge vendeur Contactez votre conseiller SAFTI : Vanessa BOXUS - EI - Agent commercial immatriculé au RSAC de Agen sous le numéro 452966088 Surface terrain : 735 m². Honoraires à la charge du Vendeur Bien En copropriété : NON
Informations clés
- Prix 291 200 €
- Référence ParuVendu 1525277_19370
- Nombre de pièces 5 pièces
- Surface 110 m²
- Date DPE 26/06/2025
- Classe énergie A
- Indice d’émissions de gaz à effet de serre A
- Dépenses énergétiques Montant moyen pour 2023 : 460 €
Diagnostic énergétique


Pour la nouvelle notation (DPE à partir de juillet 2021), c'est la plus mauvaise des deux performances (énergie, climat) qui est retenue.