Vente Maison/villa 7 pièces Chartres
Description
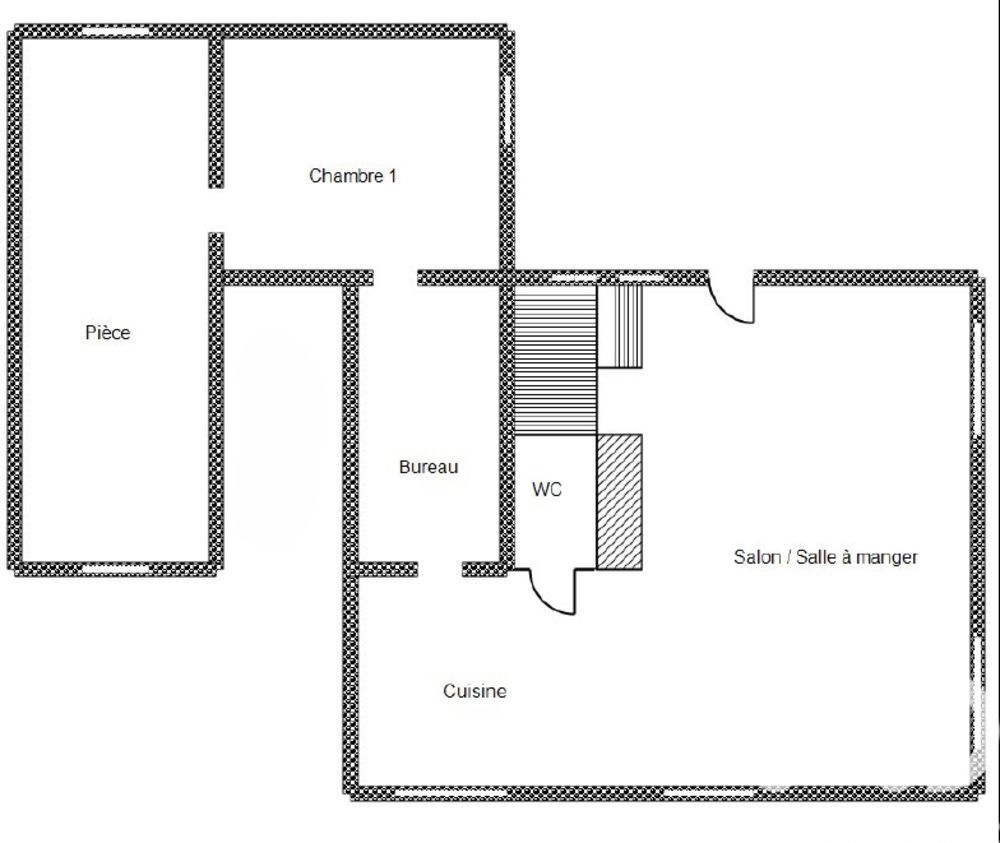
iad France - Cécile Gomes vous propose: Dans un quartier prisé de Chartres, je vous propose cette maison d’habitation offrant de beaux volumes et un cadre de vie privilégié, à proximité de la gare et des axes principaux. En rez-de-jardin, vous découvrirez une spacieuse pièce de vie de 47 m², lumineuse et conviviale, comprenant une cuisine ouverte et une cheminée. De larges baies vitrées prolongent l’espace vers une terrasse et un jardin clos et arboré de 660 m², sans vis-à-vis, idéal pour profiter des beaux jours en toute tranquillité. Un bureau traversant, pouvant également faire office de dressing, mène à une chambre de plain-pied de 12,5 m². Ce niveau dispose également d’une pièce insonorisée de 24 m², parfaite pour un home cinéma, une salle de musique ou une salle de sport. À l’étage, l’espace nuit se compose de trois chambres confortables de 9 à 12,5 m², ainsi que d’une salle de bains avec WC et un coin douche. Caractéristiques techniques : Chaudière gaz à condensation de 2022 DPE : C Double vitrage PVC et métal Tout-à-l’égout Garage Cette maison offre un équilibre idéal entre volumes, fonctionnalité et extérieur préservé, dans un secteur recherché de Chartres. Je reste à votre disposition pour organiser une visite et vous accompagner dans votre projet immobilier. Honoraires d'agence à la charge du vendeur. Information d'affichage énergétique sur ce bien : classe ENERGIE C indice 127 et classe CLIMAT C indice 27. Les informations sur les risques auxquels ce bien est exposé, y compris l'obligation légale de débroussaillement, sont disponibles sur le site Géorisques : La présente annonce immobilière a été rédigée sous la responsabilité éditoriale de Mme Cécile Gomes mandataire indépendant en immobilier (sans détention de fonds), agent commercial de la SAS I@D France immatriculé au RSAC de CHARTRES sous le numéro 899169619, titulaire de la carte de démarchage immobilier pour le compte de la société I@D France SAS. CC HT Numéro de mandat : 1968936 Honoraires à la charge du Vendeur Bien En copropriété : NON
Informations clés
- Prix 269 000 €
- Référence ParuVendu 1968936
- Nombre de pièces 7 pièces
- Surface 131 m²
- Date DPE 19/02/2026
- Classe énergie C
- Indice d’émissions de gaz à effet de serre C
- Dépenses énergétiques Montant moyen pour 2021 : 1 854 €
Diagnostic énergétique


Pour la nouvelle notation (DPE à partir de juillet 2021), c'est la plus mauvaise des deux performances (énergie, climat) qui est retenue.