Maison - 4 pièce(s) - 95 m² Châteauroux

PreviousNext

Description

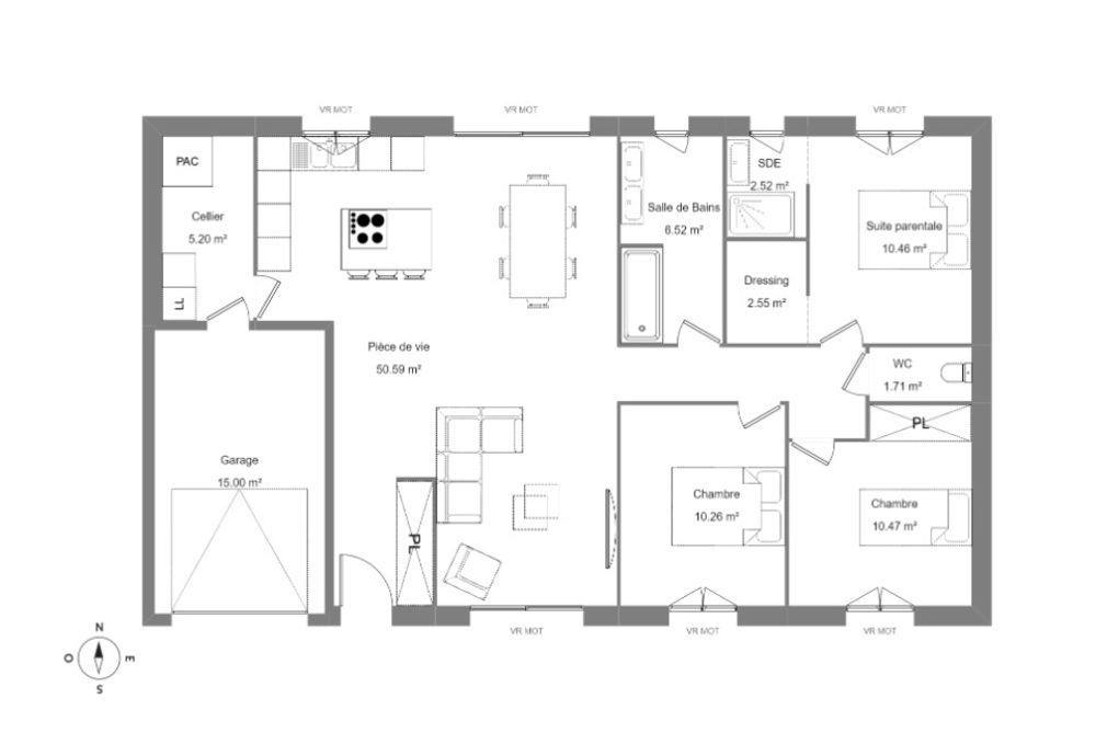
Châteauroux : Projet de construction maison F4 (95 m²) Emplacement privilégié -  À découvrir à Châteauroux (36000) : maison neuve 4 pièces en vente, 95 m² de surface et 707 m² de terrain. Elle offre trois chambres, une cuisine et deux salles de bains. À dix minutes : gare (Châteauroux), établissements scolaires, crèche, bibliothèque, boulangeries, commerces, supermarchés, bureau de poste et boucheries-charcuteries. Autoroute A20 et nationale N151 à 5 km. Le prix de vente de cette maison de 4 pièces est de 211 369 €. Prenez contact avec notre agence (Kevin GRIMAUD : *67) pour toute information sur la maison. Nos offres de terrains sont proposées en collaboration avec nos partenaires fonciers pour des maisons dans le cadre de la loi du 10/12/1990, selon disponibilité. Surface habitable : 95m2. Nombre de pièces : 4. Nombre de chambres : 3. Prix terrain seul : 47369 euros. Terrain proposé par un partenaire foncier selon disponibilités et autorisation de publicité au prix de 47 369 €. Hors droit d'enregistrement et frais de notaire. Terrain + Maison proposés au prix de 211 369 € (Hors branchements et raccordements, papiers peints, peintures, revêtement de sol dans les chambres. Tarif modifiable sans préavis). Etiquette énergie : A. Différents modèles disponibles pour ce terrain. Assurances et garanties du constructeur (RC professionnelle, décennale, dommage ouvrage, garantie de remboursement de l'acompte, livraison à prix et délai convenu) : MAISONS BRUNO PETIT MJB 360 avenue de la Châtre 36000 Châteauroux Référence : KG2428928_5 Bien En copropriété : non

Informations clés

  • Prix 211 369 €
  • Référence ParuVendu 1005402_1005130_3674178
  • Nombre de pièces 4 pièces
  • Surface 95 m²
  • Date DPE 01/01/1970
  • Classe énergie  A
  • Indice d’émissions de gaz à effet de serre  NC