Maison Chateauroux Châteauroux
Description
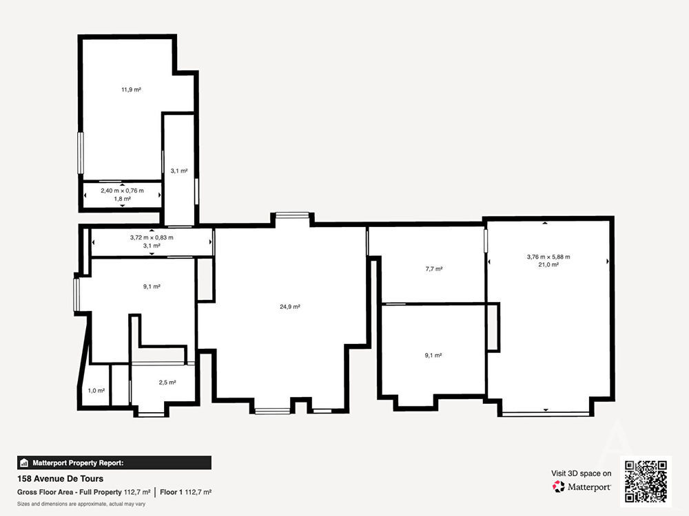
EXCLUSIVITE Quartier Avenue de TOURS! Fermette à rénover comprenant: Pièce à vivre d'environ 24m2, cuisine, dégagement, wc, une chambre avec salle d'eau, une autre chambre. A l'étage: deux pièces, grand grenier aménageable. Partie grange et terrain d'environ 1322m2. (9.50 % honoraires TTC à la charge de l'acquéreur.) Etat général : Travaux à prévoir Surface terrain : 1322 Année de construction : 1900 Chauffage : Individuel Chauffage (mécanisme) : Radiateur Chauffage (mode) : Electrique Fenêtre : Bois double vitrage Cuisine : Amenagée Honoraires à la charge de : Acquéreur Pourcentage des Honoraires à la charge de l'Acquéreur : 9.5 % Prix net vendeur : 100000 euros Bien En copropriété : Non Procédure sur le Syndicat des copropriétaires : NC
Informations clés
- Prix 109 500 €
- Référence ParuVendu 14255441_5025
- Nombre de pièces 5 pièces
- Surface 93 m²
- Date DPE 09/02/2026
- Classe énergie F
- Indice d’émissions de gaz à effet de serre C
Diagnostic énergétique


Pour la nouvelle notation (DPE à partir de juillet 2021), c'est la plus mauvaise des deux performances (énergie, climat) qui est retenue.