Maison - 5 pièce(s) - 93 m² Cléon-d'Andran

PreviousNext

Description

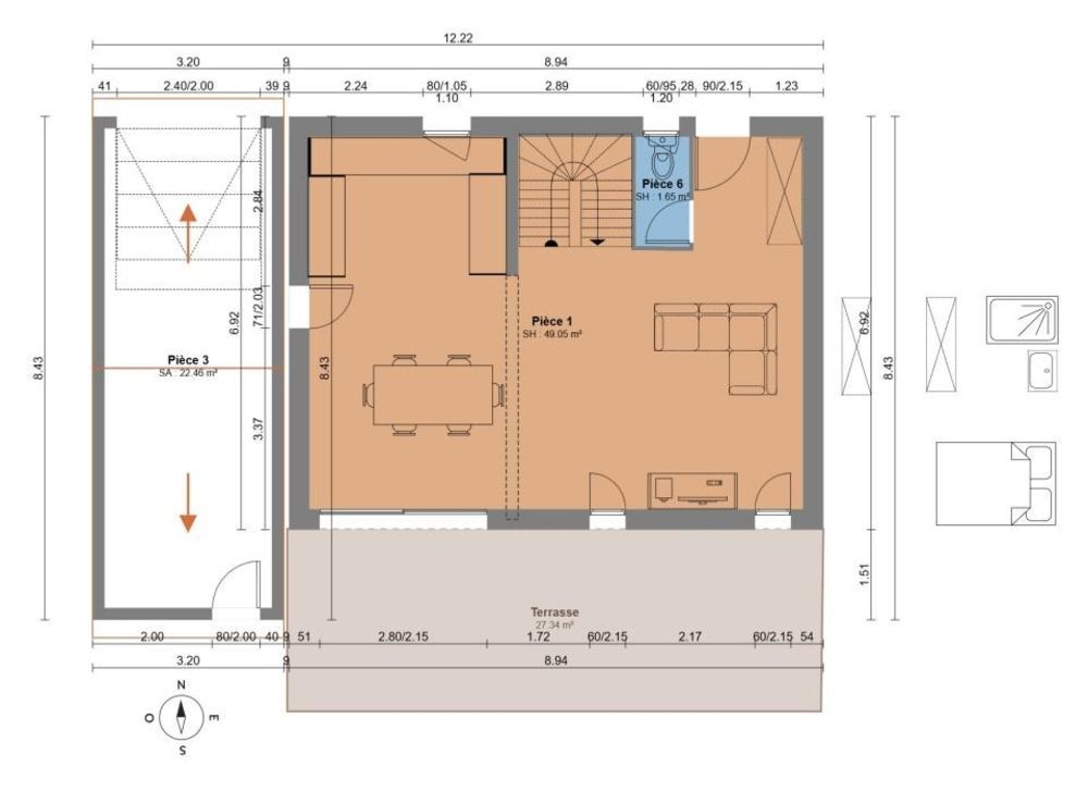
VENTE d'une maison F5 (93 m²) à Cléon-d'Andran Emplacement privilégié -  À Cléon-d'Andran (26450), maison neuve à vendre de 5 pièces, 2 niveaux, 93 m² sur 625 m² de terrain. Elle se divise en trois chambres, une cuisine et une salle de bains. Proche établissements scolaires, crèches, bassin de natation, tennis, bibliothèque, boulangeries, commerces, supermarché, bureau de poste et supérette. Autoroute A7 et nationales N7 et N102 à 19 km. Montélimar à 16 km. Cette maison de 5 pièces est proposée à l'achat pour 263 951 €. Contactez florian DUBOIS (tél : ) pour toute information sur la maison ou sur les démarches à suivre. Maisons France Confort Montélimar vous accompagne dans tous vos projets immobiliers et à toutes les étapes de l'achat. Nos offres de terrains sont proposées en collaboration avec nos partenaires fonciers pour des maisons dans le cadre de la loi du 10/12/1990, selon disponibilité. Surface habitable : 93m2. Nombre de pièces : 5. Nombre de chambres : 3. Prix terrain seul : 99000 euros. Terrain proposé par un partenaire foncier selon disponibilités et autorisation de publicité au prix de 99 000 €. Hors droit d'enregistrement et frais de notaire. Maison proposée, avec un contrat de construction de maison individuelle, dans le cadre de la loi du 19/12/1990, au prix de 164 951 € (Hors branchements et raccordements, papiers peints, peintures, revêtement de sol dans les chambres, qui sont chiffrés dans les travaux qui restent à charge du client. Tarif modifiable sans préavis). Étiquette énergie : A. Différents modèles disponibles pour ce terrain. Assurances et garanties du constructeur comprises (RC professionnelle, décennale, dommage ouvrage). MAISONS FRANCE CONFORT Bd du Président François Mitterrand 26200 Montélimar Référence : FD2326799_4 Bien En copropriété : non

Informations clés

  • Prix 263 951 €
  • Référence ParuVendu 1005225_1005119_3560914
  • Nombre de pièces 5 pièces
  • Surface 93 m²
  • Date DPE 01/01/1970
  • Classe énergie  A
  • Indice d’émissions de gaz à effet de serre  NC